McDowall

SA2

Greater Brisbane / Bald Hills - Everton Park

Updated 10 Apr 2026 ABS 2021 302011026
Chart Color Schemes
Loading map data ...
Statistical Area (SA2) Boundary Analysis

This analysis uses ABS Statistical Areas Level 2 (SA2) boundaries, which can materially differ from Suburbs and Localities (SAL) even when sharing similar names.

SA2 boundaries are defined by the Australian Bureau of Statistics and are designed to represent communities for statistical reporting (e.g., census and ERP).

Suburbs and Localities (SAL) represent commonly-used suburb/locality names (postal-style areas) and may use different geographic boundaries. For comprehensive analysis, consider reviewing both boundary types if available.

0 People

est. as @ -- *

ABS ERP | -- people | --

2021 Census | -- people

Land Area
--
Land Area
Population Density
--
Density
Unemployment Rate
--
Unemployment
Development
--
Resi Approvals
Get My Report

Sales Activity

Table Chart PROFILE FAQ

Curious about local property values? Filter the chart to assess the volume and appreciation (including resales) trends and regional comparisons, or scroll to the map below view this information at an individual property level.

House icon
Median Price
$0
Key icon
1yr Sales Volume
0
Find a Recent Sale
Type Specified (1) | Limit 50

Sales Detail

Population

Table Chart PROFILE FAQ

An assessment of population growth drivers in McDowall reveals an overall ranking slightly below national averages considering recent, and medium term trends

Based on AreaSearch's analysis, McDowall's population is around 9,064 as of Feb 2026. This reflects an increase of 1,146 people (14.5%) since the 2021 Census, which reported a population of 7,918 people. The change is inferred from the estimated resident population of 8,602 from the ABS as of June 2024 and an additional 333 validated new addresses since the Census date. This population level equates to a density ratio of 2,064 persons per square kilometer, which is above the average seen across national locations assessed by AreaSearch. McDowall's 14.5% growth since the 2021 census exceeded the SA4 region (9.1%) and the national average, marking it as a growth leader in the region. Population growth for the area was primarily driven by interstate migration, which contributed approximately 49.2% of overall population gains during recent periods, although all drivers, including overseas migration and natural growth, were positive factors.

AreaSearch adopts ABS/Geoscience Australia projections for each SA2 area, as released in 2024 with 2022 as the base year. For any SA2 areas not covered by this data, and for years post-2032, Queensland State Government's SA2 area projections, released in 2023 and based on 2021 data, are adopted. It should be noted that these state projections do not provide age category splits; hence, where utilised, AreaSearch applies proportional growth weightings in line with the ABS Greater Capital Region projections (released in 2023, based on 2022 data) for each age cohort. Looking at population projections moving forward, a population increase just below the median of statistical areas across the nation is expected, with the area expected to grow by 755 persons to 2041 based on the latest annual ERP population numbers, reflecting a gain of 3.2% in total over the 17 years.

Frequently Asked Questions - Population

What is the latest population estimate for the McDowall SA2?
Total population for the McDowall SA2 was estimated to be approximately 9,064 as at Feb 26. This is based upon an estimated resident population of 8,602 from the ABS up to June 2024.
How has the population in the McDowall SA2 changed since 2021?
The mcdowall sa2 has added approximately 1,146 people and shown a 14.47% increase from the 7,918 people recorded at the 2021 Census period.
What is the population density in the McDowall SA2?
The population density in the McDowall SA2 is estimated at 2,064 persons per square kilometer based on the latest population estimate.
How much has the population grown over the past 10 years in the McDowall SA2?
Over the past 10 years, the population in the McDowall SA2 has shown a compound annual growth rate of 1.0% per annum.
What are the main drivers of population growth in the McDowall SA2?
Population growth in the McDowall SA2 is driven by: Interstate migration (49.2%), Overseas migration (26.3%), Natural increase (24.5%). The primary driver is Interstate migration, contributing 49.2% of overall population gains.

Development

Table Chart PROFILE FAQ

AreaSearch assessment of residential approval activity sees McDowall among the top 30% of areas assessed nationwide

McDowall has seen around 55 new homes approved annually, with 279 homes approved over the past 5 financial years (between FY-21 and FY-25) and 25 so far in FY-26. With an average of 2.3 new residents per year gained for each dwelling built over the past 5 financial years (between FY-21 and FY-25), suggesting solid demand that supports property values, new homes are being built at an average value of $353,000. Additionally, $1.6 million in commercial development approvals have been recorded this financial year, demonstrating the area's residential nature.

When measured against Greater Brisbane, McDowall records somewhat elevated construction (13.0% above regional average per person over the 5 year period), maintaining good buyer choice while supporting existing property values. Recent construction comprises 12.0% detached dwellings and 88.0% townhouses or apartments. This trend toward denser development provides accessible entry options and appeals to downsizers, investors, and entry-level buyers. This marks a significant departure from existing housing patterns (currently 86.0% houses), suggesting diminishing developable land availability and responding to evolving lifestyle preferences and housing affordability needs. With around 185 people per dwelling approval, McDowall shows characteristics of a growth area.

Looking ahead, McDowall is expected to grow by 293 residents through to 2041 (from the latest AreaSearch quarterly estimate). At current development rates, new housing supply should comfortably meet demand, providing good conditions for buyers and potentially supporting growth beyond current population projections.

Frequently Asked Questions - Development

How many dwelling approvals have occurred in the McDowall SA2 recently?
Dwelling approval activity in the the McDowall SA2 area has seen 96 residential approvals over the past two financial years, based on AreaSearch's SA2 aggregation method. The McDowall SA2's current population of 9,064 has been supported by 55 approvals on average over recent years.
How does the McDowall SA2's development activity compare to the broader region?
The McDowall SA2 has seen 0.69 approvals per 100 people in recent years, compared to 0.8 approvals in the broader region. This means that one dwelling has been approved for every 185 people in the McDowall SA2, compared to one for every 140 in the broader region.
Is the McDowall SA2 keeping up with housing demand?
With the population expected to increase by 293 people by 2041, around 147 new dwellings will be necessary. Recent approval levels appear more than sufficient to meet these forecasts, considering the census average of 2.0 persons per dwelling. This suggests that population growth may exceed trend projections in the coming years, supported by a robust housing supply.
What has been the trend in development approvals over the past five years in the McDowall SA2?
Looking at development activity over the past five years, the McDowall SA2's approval levels have been below the yearly average of 55, indicating a recent decline in approval activity.
How many dwellings will be needed to accommodate future population growth in the McDowall SA2?
The population in the McDowall SA2 is expected to grow by 293 people by 2041, necessitating approximately 147 new dwellings. This calculation is based on the current census average of 2.0 persons per dwelling in the area.
How does recent development compare to population growth in the McDowall SA2?
Over the past five years, the population in the McDowall SA2 has grown by approximately 1,911 people, while 279 residential approvals were recorded. This equates to a ratio of 6.8 people added for each new dwelling approval. This high ratio suggests strong population growth relative to housing supply, potentially indicating unmet housing demand.
Are there opportunities for residential developers in the McDowall SA2?
With dwelling approval activity running at an average of 55 approvals per year and a population of 9,064, the market appears to be adequately supplied relative to projected housing demand in recent years, suggesting that developers should have a longer-term approach when considering new projects. With the population expected to increase by 293 people by 2041, around 147 new dwellings will be necessary. Recent approval levels appear more than sufficient to meet these forecasts, considering the census average of 2.0 persons per dwelling. This suggests that population growth may exceed trend projections in the coming years, supported by a robust housing supply.

Infrastructure

PROFILE FAQ

McDowall has strong levels of nearby infrastructure activity, ranking in the top 30% nationally

Nothing can influence an area's performance as much as changes to local infrastructure, major projects, and planning initiatives. In total 12 projects have been identified by AreaSearch that are likely to have an impact on the area. Key projects include the McDowall Village Master Plan Redevelopment, Cabbage Tree Creek Bikeway (Hamilton Road to Old Northern Road), Cove McDowall, and Everton Park Urban Village, with the list below detailing those likely to be of most relevance.

Professional plan users can use the search below to filter and access additional projects.

INFRASTRUCTURE SEARCH
All Selected

AI Generated Denotes AI-based impression for illustrative purposes only, not to be taken as definitive under any circumstances. Please follow links and conduct other investigations from the project's source for actual imagery. Developers and project owners wishing us to use original imagery please Contact Us and we will do so.

Frequently Asked Questions - Infrastructure

What are some of the major infrastructure and planning changes likely to influence the McDowall SA2?
Key infrastructure and planning changes likely to influence the McDowall SA2 include: McDowall Village Master Plan Redevelopment (Planning); Cabbage Tree Creek Bikeway (Hamilton Road to Old Northern Road) (Planning); Cove McDowall (Dev. Approval); Everton Park Urban Village (Approved); and Raven Street Reserve Mountain Bike Trail Network Upgrade (Construction). These projects represent significant developments that will shape the area's future infrastructure landscape.
What types of infrastructure projects are impacting the McDowall SA2?
Infrastructure development impacting the McDowall SA2 spans multiple sectors including Residential Development, Transport & Logistics, and Sports & Recreation, among others.
What is the scale of infrastructure investment impacting the McDowall SA2?
Infrastructure investment analysis indicates significant investment of approximately $991 million in infrastructure projects affecting the region, with a notable concentration of investment within the immediate the McDowall SA2 vicinity.
How does the McDowall SA2's infrastructure development compare to other areas?
With an infrastructure score in the top 30%, the McDowall SA2 demonstrates above-average development activity compared to national benchmarks.
McDowall Village Master Plan Redevelopment
Category: Retail
Stage: Planning | Est. Comp: 2028
Source / Links: Link 1   Link 2  

Concept master plan to refurbish and modestly expand McDowall Village Shopping Centre, an IGA anchored neighbourhood centre. The scope involves upgrading facades, improving pedestrian links around Beckett and Hamilton Roads, and reconfiguring tenancies to attract new convenience retail. As of early 2026, the project remains in the feasibility and planning phase led by CMC Property Management, with no formal development application yet lodged with Brisbane City Council.

Retail

Brisbane Metro Extension - Northern Transitway
Category: Transport & Logistics
Stage: Planning | Est. Comp: 2032
Source / Links: Link 1   Link 2  

The Brisbane Metro Extension - Northern Transitway project involves extending high-frequency, electric metro services from the CBD to Carseldine. The route utilizes the Northern Transitway bus lanes on Gympie Road (completed in 2024), the existing Northern Busway, and a proposed busway tunnel as part of a Gympie Road bypass. Current activity focuses on a $50 million business case funded by the Australian Government to finalize the alignment, station locations, and depot sites through Lutwyche, Kedron, and Chermside. Recent reports indicate the business case contract is set to commence in June 2026 with completion expected by mid-2028, potentially pushing the operational date for the northern extension beyond the 2032 Olympic Games.

Transport & Logistics

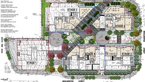
Everton Park Urban Village
Category: Communities, Precincts & Urban Renewal
Stage: Approved | Est. Comp: 2027
Source / Links: Link 1   Link 2  

Mixed-use development featuring 378 residential apartments across four towers (9-16 storeys), retail spaces, medical centre, pharmacy, and childcare centre. The development includes a central pedestrian plaza and boulevard connecting to Woolworths Street.

Communities, Precincts & Urban Renewal

MONARC Mixed-Use Precinct
Category: Communities, Precincts & Urban Renewal
Stage: Under Assessment | Est. Comp: 2026
Source / Links: Link 1   Link 2  

A 10,000 square metre mixed-use destination precinct at 768 Stafford Road, developed by Rogerscorp in collaboration with Woolworths. The project includes medical facilities, retail spaces, childcare, residential components and a healthcare super clinic serving Defence Force and Emergency Services.

Communities, Precincts & Urban Renewal

Stafford Heights Aged Care & Retirement Village Expansion
Category: Residential Development
Stage: Construction | Est. Comp: 2026
Source / Links: Link 1   Link 2  

Significant expansion of the existing Churches of Christ aged care and retirement living precinct in Stafford Heights, QLD, adding 80+ new independent living units and enhanced care facilities. The project is being developed by Churches of Christ in Queensland.

Residential Development

Tramway Reserve Active Recreation Hub
Category: Sports & Recreation
Stage: Completed | Est. Comp: 2021
Source / Links: Link 1   Link 2  

New multi-purpose active recreation hub within Beckett Road Park and the adjacent Tramway Reserve in McDowall. The project delivers an upgraded, fully fenced playground relocated to higher ground to reduce flood risk, new modern play equipment, a half-court basketball space, shared walking and cycling paths, seating and water stations, and other park amenity improvements funded through Brisbane City Council suburban renewal and park upgrade programs. :contentReference[oaicite:0]{index=0}:contentReference[oaicite:1]{index=1}:contentReference[oaicite:2]{index=2}

Sports & Recreation

Raven Street Reserve Mountain Bike Trail Network Upgrade
Category: Sports & Recreation
Stage: Construction | Est. Comp: 2025
Source / Links: Link 1   Link 2  

Brisbane City Council is upgrading the mountain bike and off road cycling trail network within Raven Street Reserve, part of the Chermside Hills Reserves in Brisbane's north. The project will formalise and extend existing shared trails, add new beginner and intermediate loops, create a small skills and practice area, improve wayfinding and safety signage, and strengthen connections to the Downfall Creek Bushland Centre, bikeway and nearby streets. Works are planned to be delivered in stages as part of Council's broader Brisbane off road cycling program.

Sports & Recreation

Flockton Street Development Site
Category: Residential Development
Stage: Proposed | Est. Comp: 2028
Source / Links: Link 1   Link 2  

A significant 2.54-acre (1.03 hectares) landholding with development potential, zoned 'Emerging Community'. The site offers opportunity for residential land subdivision, townhouses, or retirement facilities. Being marketed by Sotheby's International Realty.

Residential Development

Employment

Table Chart PROFILE FAQ

AreaSearch analysis of employment trends sees McDowall performing better than 90% of local markets assessed across Australia

McDowall features a well-educated workforce, with professional services showing strong representation, an unemployment rate of just 2.1%, and 9.7% in estimated employment growth over the past year. As of December 2025, 5,528 residents are in work while the unemployment rate is 2.0% below Greater Brisbane's rate of 4.1%, and workforce participation is well beyond standard (81.8% compared to Greater Brisbane's 71.2%). Based on Census responses, a moderate 24.8% of residents were found to work from home, though Covid-19 lockdown impacts should be considered.

Employment among residents is concentrated in health care & social assistance, public administration & safety, and education & training. The area demonstrates a particularly notable concentration in public administration & safety, with employment levels at 1.6 times the regional average. Meanwhile, manufacturing has a limited presence with 3.7% employment compared to 6.4% regionally. The predominantly residential area appears to offer limited employment opportunities locally, as indicated by the count of Census working population vs resident population.

Based on AreaSearch analysis of SALM and ABS data, over the 12 months to December 2025, employment increased by 9.7% while the labour force increased by 9.9%, causing the unemployment rate to rise by 0.2 percentage points. By comparison, Greater Brisbane recorded employment growth of 3.2%, labour force growth of 3.0%, with unemployment falling 0.1 percentage points. Jobs and Skills Australia's national employment forecasts from May-25 can offer further insight into potential future demand within McDowall. These projections, covering five and ten-year periods, have been mapped against the local employment profile to estimate growth patterns. While national employment is forecast to expand by 6.6% over five years and 13.7% over ten years, growth rates differ significantly between industry sectors. Applying these industry-specific projections to McDowall's employment mix suggests local employment should increase by 7.0% over five years and 14.4% over ten years (please note this is a simple weighting extrapolation for illustrative purposes and does not take into account localised population projections).

Frequently Asked Questions - Employment

What is the employment situation in the McDowall SA2?
As of December 2025, the McDowall SA2 has approximately 5,528 employed residents with an unemployment rate of 2.1%. This very low unemployment rate indicates a tight labour market with strong demand for workers. The area ranks in the top 25% nationally for employment performance, indicating a robust job market.
How does the McDowall SA2's unemployment rate compare to the broader region?
As of December 2025, the unemployment rate in the McDowall SA2 stands at 2.1%, which is 2.0 percentage points below Greater Brisbane's rate of 4.1%. This lower unemployment rate suggests stronger local employment conditions. For comparison, the national unemployment rate is 4.2%.
What are the major employment sectors in the McDowall SA2?
The employment landscape in the McDowall SA2 is dominated by several key sectors. The largest employers are health care & social assistance (18.1% of employment), public administration & safety (11.4%), and education & training (10.8%). Other significant employers include professional & technical and retail trade.
How has employment changed recently in the McDowall SA2?
Over the past year to December 2025, the McDowall SA2 has experienced employment growth, with total employment increasing while the labour force increased. As a result, the unemployment rate has rise. By comparison, Greater Brisbane saw employment increased and its unemployment rate dropped.
What is the workforce participation rate in the McDowall SA2?
The workforce participation rate in the McDowall SA2 is 81.8%, which represents the proportion of working-age residents who are either employed or actively seeking work. This high participation rate indicates strong workforce engagement and economic vitality. The local rate leading the Greater Brisbane average of 71.2%, indicating stronger workforce attachment in the local area.
Which industries are over-represented in the McDowall SA2's employment market?
The mcdowall sa2 shows notable specialization in public administration & safety, which employs 11.4% of the local workforce compared to 7.0% regionally. This concentration suggests the area has developed competitive advantages in this sector.
What are the employment growth prospects for the McDowall SA2?
Based on Jobs and Skills Australia projections applied to the McDowall SA2's industry mix, employment is expected to grow by 7.0% over the next five years and 14.4% over ten years. This exceeds the national forecast of 6.6% over five years, suggesting the area's industry composition is well-positioned for future growth. Steady growth is anticipated across multiple sectors, providing diverse employment opportunities.
How does the job market in the McDowall SA2 compare nationally?
The mcdowall sa2's employment market shows strong performance nationally, ranking in the top 25% of areas assessed by AreaSearch. This indicates robust employment conditions and economic vitality compared to other regions. Recent job advertisement trends show the broader employment region saw a 4.6% decline, ranking 28.0th out of 37 regions nationally.
What employment opportunities exist for skilled workers in the McDowall SA2?
Skilled workers will find excellent opportunities in the McDowall SA2, with knowledge-intensive sectors comprising 44.8% of local employment. Key sectors for skilled workers include health care & social assistance (18.1%), education & training (10.8%), and professional & technical (10.7%). With projected employment growth of 7.0% over five years, demand for skilled workers is expected to remain strong.

Income

Table Chart PROFILE FAQ

The economic profile demonstrates exceptional strength, placing the area among the top 10% nationally based on comprehensive AreaSearch income analysis

As per AreaSearch's latest postcode level ATO data released for FY-23, the McDowall SA2's median income among taxpayers is $66,925, with an average of $81,243. This is extremely high nationally, and compares to Greater Brisbane's median of $58,236 and average of $72,799. Based on Wage Price Index growth of 9.91% since FY-23, current estimates would be approximately $73,557 (median) and $89,294 (average) as of September 2025. Census data reveals household, family and personal incomes all rank highly in McDowall, between the 83rd and 89th percentiles nationally. Looking at income distribution, 33.7% of the population (3,054 individuals) fall within the $1,500 - 2,999 income range, aligning with the surrounding region where this cohort likewise represents 33.3%. A significant 38.8% earn above $3,000 weekly, reflecting pockets of prosperity that drive robust local economic activity. After housing costs, residents retain 87.4% of income, reflecting strong purchasing power and the area's SEIFA income ranking places it in the 8th decile.

Frequently Asked Questions - Income

What is the median taxable income in the McDowall SA2?
Based on Wage Price Index adjustments to September 2025, the estimated median taxable income in the McDowall SA2 is approximately $73,557. The official ATO data from FY-23 recorded a median of $66,925.
What is the average taxable income in the McDowall SA2?
Based on Wage Price Index adjustments to September 2025, the estimated average taxable income in the McDowall SA2 is approximately $89,294. The official ATO data from FY-23 recorded an average of $81,243.
How does the median taxable income in the McDowall SA2 compare to the region?
Based on Wage Price Index adjustments to September 2025, the estimated median taxable income in the McDowall SA2 is approximately $73,557 compared to $64,007 in Greater Brisbane. The official ATO data from FY-23 shows $66,925 and $58,236 respectively.
How does the average taxable income in the McDowall SA2 compare to the region?
Based on Wage Price Index adjustments to September 2025, the estimated average taxable income in the McDowall SA2 is approximately $89,294 compared to $80,013 in Greater Brisbane. The official ATO data from FY-23 shows $81,243 and $72,799 respectively.
What are the main income cohorts in the McDowall SA2 according to the 2021 Census?
As per the 2021 Census, the income bracket containing the largest proportion (~33.7% / 3,054 persons) of the McDowall SA2's population is the $1,500 - 2,999 cohort.
How do the main income cohorts in the McDowall SA2 compare to the region?
The largest income cohort in the McDowall SA2 is the $1,500 - 2,999 group, representing about 33.7% of the population. In comparison, Greater Brisbane's largest income cohort is the $1,500 - 2,999 group, representing 33.3% of its population, according to the 2021 Census.
What is the median household income in the McDowall SA2 according to the 2021 Census?
The 2021 Census data indicates that the median household income in the McDowall SA2 is $2,461/wk.
What is the median family income in the McDowall SA2 according to the 2021 Census?
According to the 2021 Census, the median family income in the McDowall SA2 is $2,708/wk.
What is the median personal income in the McDowall SA2 according to the 2021 Census?
The 2021 Census shows that the median personal income in the McDowall SA2 is $1,056/wk.
How does the McDowall SA2's income rank nationally?
The McDowall SA2's income level is among the highest in Australia according to the latest ATO data aggregated by AreaSearch for FY-23. The McDowall SA2's median income among taxpayers is $66,925 and the average income stands at $81,243, which compares to figures for Greater Brisbane's of $58,236 and $72,799 respectively. Based on Wage Price Index growth of 9.91% since FY-23, current estimates would be approximately $73,557 (median) and $89,294 (average) as of September 2025.
What is the disposable income in the McDowall SA2?
The estimated disposable income in the McDowall SA2 is $9,325 per year according to AreaSearch analysis.
How does the McDowall SA2's disposable income compare to the region?
The mcdowall sa2's disposable income is $9,325 compared to $6,725 for Greater Brisbane, based on AreaSearch analysis.

Housing

Table Chart PROFILE FAQ

McDowall is characterized by a predominantly suburban housing profile, with above-average rates of outright home ownership

Dwelling structure within McDowall, as evaluated at the latest Census, comprised 85.7% houses and 14.3% other dwellings (semi-detached, apartments, 'other' dwellings), in comparison to Brisbane metro's 73.5% houses and 26.5% other dwellings. Meanwhile, the level of home ownership within McDowall was well beyond that of Brisbane metro, at 36.3%, with the remainder of dwellings either mortgaged (40.1%) or rented (23.6%). The median monthly mortgage repayment in the area was well above the Brisbane metro average at $2,167, while the median weekly rent figure was recorded at $460, compared to Brisbane metro's $1,863 and $380. Nationally, McDowall's mortgage repayments are significantly higher than the Australian average of $1,863, while rents are substantially above the national figure of $375.

Frequently Asked Questions - Housing

What percentage of homes are owned vs rented in the McDowall SA2?
In the McDowall SA2, 36.3% of homes are owned outright, 40.1% are owned with a mortgage, and 23.6% are rented.
What percentage of dwellings in the McDowall SA2 are houses?
According to the latest data, 85.7% of dwellings in the McDowall SA2 are houses.
What percentage of dwellings in the McDowall SA2 are apartments or units?
In the McDowall SA2, 4.7% of dwellings are apartments or units, with an additional 9.6% being semi-detached dwellings.
What is the level of outright home ownership in the McDowall SA2?
Outright home ownership in the McDowall SA2 stands at 36.3%, compared to 26.7% in Greater Brisbane.
What is the median monthly mortgage repayment in the McDowall SA2?
The median monthly mortgage repayment in the McDowall SA2 is $2,167, compared to $1,863 in Greater Brisbane.
What is the median weekly rent in the McDowall SA2?
The median weekly rent in the McDowall SA2 is $460, compared to $380 in Greater Brisbane.
What is the distribution of rental prices in the McDowall SA2?
In the McDowall SA2, 0.5% of rentals are $0-149/week, 23.1% are $150-349/week, 69.2% are $350-649/week, 7.2% are $650-949/week, and 0.0% are $950+/week.
What is the average monthly housing cost in the McDowall SA2?
The aggregate monthly housing cost in the McDowall SA2 is $1,339, which represents the average monthly cost across all housing types.
What percentage of income do residents spend on housing in the McDowall SA2?
In the McDowall SA2, households with mortgages typically spend 20.3% of their income on mortgage repayments, while renters spend 18.7% of their income on rent.
How crowded are homes in the McDowall SA2?
The average persons per bedroom ratio in the McDowall SA2 is 0.7, indicating the level of household density.
How does housing affordability in the McDowall SA2 compare to the region?
Housing affordability in the McDowall SA2 shows mortgage holders spending 20.3% of income on repayments (vs 23.3% regionally), while renters spend 18.7% of income on rent (vs 20.6% regionally).
What types of dwellings are most common in the McDowall SA2?
The dwelling mix in the McDowall SA2 consists of 85.7% detached houses, 9.6% semi-detached dwellings, 4.7% apartments, and 0.0% other dwelling types.
What is the weighted average housing cost based on tenure mix in the McDowall SA2?
Considering the housing occupancy patterns, the weighted average monthly housing cost is approximately $1,339. This accounts for outright owners paying no housing costs, mortgage holders paying $2,167/month, and renters paying $1,992/month.
How affordable is housing in the McDowall SA2 relative to local incomes?
Housing in McDowall consumes approximately 12.6% of median household income ($10,656 monthly), indicating costs are highly affordable. The generally accepted benchmark is that housing should not exceed 30% of household income.
How do proposed developments compare to existing housing types in the McDowall SA2?
Recent development applications in McDowall show attached dwellings contributing 81% of approvals compared to 14% of existing stock, while detached houses represent 19% of applications versus 86% of current dwellings. This suggests increasing densification. This area is seeing substantial increases in dwelling density compared to most Australian locations.

Household Composition

Table Chart PROFILE FAQ

McDowall features high concentrations of family households, with a higher-than-average median household size

Family households dominate at 83.2% of all households, comprising 43.6% couples with children, 29.6% couples without children, and 9.0% single parent families. Non-family households make up the remaining 16.8%, with lone person households at 14.6% and group households comprising 2.5% of the total. The median household size of 2.8 people is larger than the Greater Brisbane average of 2.6.

Frequently Asked Questions - Households

How many households are in the McDowall SA2?
As of the 2021 Census, the McDowall SA2 had 2,744 households. Based on population growth patterns, this has grown by approximately 14.5% to an estimated 3,141 households today.
What is the typical household size?
The median household size in the McDowall SA2 is 2.8 people. This compares to 2.6 in Greater Brisbane and reflects the area's household composition mix.
What types of households are most common?
Family households dominate at 83.2% of all households. The remaining households consist of lone person households (14.6%), group households (2.5%), and other household types (0.0%).
How are families structured in the area?
Among the 2,283 family households, 43.6% are couples with children, 29.6% are couples without children at home, and 9.0% are single parent families. This mix shapes local demand for schools, family services, and housing types.
How does the McDowall SA2 compare to regional household patterns?
Compared to Greater Brisbane, the McDowall SA2 shows distinct household patterns. Family households are notably over-represented at 83.2% (versus 71.7% regionally). Conversely, lone person households are under-represented at 14.6% compared to the regional 23.6%. This family-oriented profile influences local demand for family homes, schools, and children's services.
What is the average family size?
Families in the McDowall SA2 have an average of 1.6 children, slightly above the Greater Brisbane average of 1.5. This influences local demand for child-related services and larger family homes.
What are the marriage patterns in the McDowall SA2?
Marriage patterns reveal 56.6% of the adult population are currently married, while 31.0% have never married. This compares to 45.0% married and 38.4% never married across Greater Brisbane.
How significant are single-person households?
Single-person households represent 14.6% of all households in the McDowall SA2, notably lower than the regional average of 23.6%. This affects demand for smaller dwellings and single-person accommodation.
Are shared living arrangements common?
Group households (unrelated people sharing) account for 2.5% of households, well below the Greater Brisbane average of 4.7%. This low rate suggests limited student or young professional shared accommodation.
Loading household composition data...

Local Schools & Education

Table Chart PROFILE FAQ

McDowall demonstrates exceptional educational outcomes, ranking among the top 5% of areas nationally based on AreaSearch's comprehensive analysis of qualification and performance metrics

Educational attainment in McDowall significantly surpasses broader benchmarks, with 37.7% of residents aged 15+ holding university qualifications compared to 25.7% in QLD and 30.4% in Australia. This substantial educational advantage positions the area strongly for knowledge-based opportunities. Bachelor degrees lead at 24.4%, followed by postgraduate qualifications (9.3%) and graduate diplomas (4.0%). Trade and technical skills feature prominently, with 30.8% of residents aged 15+ holding vocational credentials, including advanced diplomas (11.7%) and certificates (19.1%).

Educational participation is notably high, with 30.2% of residents currently enrolled in formal education. This includes 10.0% in primary education, 8.5% in secondary education, and 6.5% pursuing tertiary education.

Frequently Asked Questions - Education

What percentage of people in the McDowall SA2 have university qualifications?
37.7% of people aged 15 and over in the McDowall SA2 have university qualifications, compared to 30.5% in the broader region.
What percentage of people in the McDowall SA2 have no formal qualifications?
31.4% of people aged 15 and over in the McDowall SA2 have no formal qualifications, compared to 35.8% regionally.
How does the McDowall SA2's education level compare to national averages?
The mcdowall sa2 ranks in the 97th percentile nationally for education based on AreaSearch's analysis of qualification and performance metrics.
What types of qualifications are most common in the McDowall SA2?
The most common qualifications in the McDowall SA2 are: Bachelor Degree (24.4%), Certificate (19.1%), Advanced Diploma (11.7%).
What proportion of the McDowall SA2's population is currently attending educational institutions?
30.2% of the population in the McDowall SA2 is currently engaged in formal education, with 10.0% in primary school, 8.5% in secondary school, 6.5% at university.
What is the ICSEA score for schools in the McDowall SA2?
The average ICSEA (Index of Community Socio-Educational Advantage) score for schools in the McDowall SA2 is 1132, indicating above-average socio-educational advantage compared to the national average of 1000.
How many schools are located within the McDowall SA2?
There are 2 schools within the McDowall SA2, with a combined enrollment of approximately 2,248 students.
What types of schools are available in the McDowall SA2?
The mcdowall sa2 includes 1 primary school, 1 combined school.

Schools Detail

Nearby Services & Amenities

PROFILE FAQ

Transport

Table Chart PROFILE FAQ

Transport servicing is low compared to other areas nationally based on assessment of service frequency, route connectivity and accessibility

Public transport analysis reveals 23 active transport stops operating within McDowall, comprising a mix of buses. These stops are serviced by 8 individual routes, collectively providing 911 weekly passenger trips. Transport accessibility is rated as good, with residents typically located 229 meters from the nearest transport stop. As a primarily residential area, most residents commute outward; the car remains the dominant mode at 87%, with 5% by train. Vehicle ownership averages 1.7 per dwelling, which is above the regional average. Some 24.8% of residents work from home (2021 Census; may reflect COVID-19 conditions).

Service frequency averages 130 trips per day across all routes, equating to approximately 39 weekly trips per individual stop.

Frequently Asked Questions - Transport

How many public transport stops are in McDowall?
There are 23 public transport stops within the McDowall SA2.
How frequent are the transport services in McDowall?
the McDowall SA2 has 911 weekly trips across 8 routes, averaging 130 trips per day.
How far are residents from public transport in McDowall?
On average, residential properties are 229 meters from the nearest transport stop.

Transport Stops Detail

Health

Table Chart PROFILE FAQ

McDowall's residents boast exceedingly positive health performance metrics with younger cohorts in particular seeing very low prevalence of common health conditions

Health outcomes data demonstrates outstanding results across McDowall, based on AreaSearch's assessment of mortality rates and chronic condition prevalence. Younger cohorts in particular see very low prevalence of common health conditions, and the rate of private health cover is exceptionally high at approximately 60% of the total population (5,429 people), compared to 55.8% across Greater Brisbane.

The most common medical conditions in the area are mental health issues and asthma, impacting 7.6% and 7.4% of residents, respectively, while 71.7% declared themselves as completely clear of medical ailments compared to 69.2% across Greater Brisbane. The under-65 population demonstrates better than average health outcomes. The area has 16.0% of residents aged 65 and over (1,452 people). Health outcomes among seniors are above average, though ranking lower nationally than the broader population.

Frequently Asked Questions - Health

How many people in the McDowall SA2 have private health insurance?
Around 59.9% of people in the McDowall SA2 are covered by private health insurance, which compares to 55.8% in the broader region of Greater Brisbane.
What percentage of the population requires ongoing medical assistance in the McDowall SA2?
In the McDowall SA2, 3.8% of the population is identified as requiring ongoing medical assistance. This figure is slightly different from the regional average, where 5.7% of people in Greater Brisbane require similar assistance.
How prevalent is asthma in the McDowall SA2?
7.4% of people in the McDowall SA2 are diagnosed with asthma. In comparison, 8.0% of the population across Greater Brisbane is affected by asthma.
What percentage of people have diabetes in the McDowall SA2?
Diabetes affects 3.3% of the the McDowall SA2 population, while in the surrounding region, 4.0% of people are diagnosed with diabetes.
What is the percentage of people with heart disease in the McDowall SA2?
3.4% of people in the McDowall SA2 have heart disease. Across the region of Greater Brisbane, 3.5% of the population is affected by heart disease.
How does the McDowall SA2 compare to the region in terms of overall private health coverage?
In the McDowall SA2, 59.9% of the population are estimated to have private health insurance. Comparatively, Greater Brisbane sees an estimated private health coverage rate of 55.8%.

Cultural Diversity

Table Chart PROFILE FAQ

The level of cultural diversity witnessed in McDowall was found to be slightly above average when compared nationally for a number of language and cultural background related metrics

McDowall was found to be more culturally diverse than the vast majority of local markets, with 25.0% of its population born overseas and 17.4% speaking a language other than English at home. The main religion in McDowall is Christianity, which makes up 59.5% of the population. This compares to 47.8% across Greater Brisbane.

In terms of ancestry (country of birth of parents), the top three represented groups in McDowall are English, comprising 24.9% of the population, Australian, comprising 24.8% of the population, and Irish, comprising 9.0% of the population. Additionally, there are notable divergences in the representation of certain other ethnic groups: Italian is notably overrepresented at 5.4% of McDowall (vs 2.0% regionally), South Australian at 0.7% (vs 0.6%) and Samoan at 0.3% (vs 0.9%).

Frequently Asked Questions - Diversity

What is the level of cultural diversity in the McDowall SA2?
McDowall was found to be more culturally diverse than the vast majority of local markets, with 25.0% of its population born overseas and 17.4% speaking a language other than English at home.
What is the most common religion in the McDowall SA2?
The main religion in McDowall was found to be Christianity, which makes up 59.5% of people in McDowall. This compares to 47.8% across Greater Brisbane.
What are the top countries of origin in the McDowall SA2?
In terms of ancestry (country of birth of parents), the top three represented groups in McDowall are English, comprising 24.9% of the population, Australian, comprising 24.8% of the population, and Irish, comprising 9.0% of the population. Additionally, there are notable divergences in the representation of certain other ethnic groups: Italian is notably overrepresented at 5.4% of McDowall (vs 2.0% regionally), South African at 0.7% (vs 0.6%) and Samoan at 0.3% (vs 0.9%).
How does the percentage of people born overseas compare to the regional average?
25.0% of the the McDowall SA2 population was born overseas, compared to 28.5% regionally.
What percentage of the the McDowall SA2 population speaks a language other than English at home?
17.4% of the population in the McDowall SA2 speaks a language other than English at home, compared to 18.7% in the wider region.
How many people in the McDowall SA2 identify as Australian Aboriginal?
0.9% of the the McDowall SA2 population identifies as Australian Aboriginal, compared to 2.1% in the region.
What is the citizenship status of the population in the McDowall SA2?
90.1% of the the McDowall SA2 population holds citizenship, compared to 83.6% in the wider region.

Age

Table Chart PROFILE FAQ

McDowall's population is slightly younger than the national pattern

With a median age of 38, McDowall is slightly older than the Greater Brisbane figure of 36, though equal to Australia's 38 years. The 45 - 54 age group shows strong representation at 13.8% compared to Greater Brisbane, whereas the 25 - 34 cohort is less prevalent at 10.4%. In the period since 2021, the 75 to 84 age group has grown from 4.4% to 5.5% of the population. Conversely, the 55 to 64 cohort has declined from 11.8% to 10.9%. Looking ahead to 2041, demographic projections reveal significant shifts in McDowall's age structure. Leading the demographic shift, the 45 to 54 group will grow by 19% (237 people), reaching 1,489 from 1,251. The aging population dynamic is clear, with those 65+ comprising 52% of projected growth. On the other hand, the 15 to 24 and 0 to 4 cohorts are expected to experience population declines.

Frequently Asked Questions - Age

What is the median age in the McDowall SA2?
According to the latest data, the median age in the McDowall SA2 is 38 years.
How does the McDowall SA2's median age compare to broader areas?
At 38 years, McDowall is 2 years older than the Greater Brisbane average (36 years) and equal to the national average.
What age groups are over-represented in the McDowall SA2?
The most over-represented age group in the McDowall SA2 compared to the Greater Brisbane region is the 45 - 54 group, making up 13.8% of the population.
What age groups are under-represented in the McDowall SA2?
The most under-represented age group in the McDowall SA2 compared to the Greater Brisbane region is the 25 - 34 group, making up 10.4% of the population.
Are there age groups with notable population variances?
No, the age distribution in the McDowall SA2 is broadly in line with the Greater Brisbane region.
What is the percentage of children (0-14 years) in the McDowall SA2?
The percentage of children aged 0-14 years in the McDowall SA2 is 19.8%.
What is the percentage of older people (65+ years) in the McDowall SA2?
The percentage of people aged 65 and over in the McDowall SA2 is 16.0%.

Nearby Areas