Wallan

SA2

Greater Melbourne / Whittlesea - Wallan

Updated 10 Apr 2026 ABS 2021 209041224
Chart Color Schemes
Loading map data ...
Statistical Area (SA2) Boundary Analysis

This analysis uses ABS Statistical Areas Level 2 (SA2) boundaries, which can materially differ from Suburbs and Localities (SAL) even when sharing similar names.

SA2 boundaries are defined by the Australian Bureau of Statistics and are designed to represent communities for statistical reporting (e.g., census and ERP).

Suburbs and Localities (SAL) represent commonly-used suburb/locality names (postal-style areas) and may use different geographic boundaries. For comprehensive analysis, consider reviewing both boundary types if available.

0 People

est. as @ -- *

ABS ERP | -- people | --

2021 Census | -- people

Land Area
--
Land Area
Population Density
--
Density
Unemployment Rate
--
Unemployment
Development
--
Resi Approvals
Get My Report

Sales Activity

Table Chart PROFILE FAQ

Curious about local property values? Filter the chart to assess the volume and appreciation (including resales) trends and regional comparisons, or scroll to the map below view this information at an individual property level.

House icon
Median Price
$0
Key icon
1yr Sales Volume
0
Find a Recent Sale
Type Specified (1) | Limit 50

Sales Detail

Population

Table Chart PROFILE FAQ

Wallan lies within the top 10% of areas nationally in terms of population growth performance according to AreaSearch analysis of short and medium-term trends

Based on AreaSearch's analysis, Wallan's population is around 31,504 as of Feb 2026. This reflects an increase of 8,877 people (39.2%) since the 2021 Census, which reported a population of 22,627 people. The change is inferred from the estimated resident population of 28,416 from the ABS as of June 2024 and an additional 3,426 validated new addresses since the Census date. This population level equates to a density ratio of 62 persons per square kilometer, providing ample space per person. Wallan's 39.2% growth since the 2021 census exceeded the national average (9.9%) and the state average, marking it as a growth leader in the region. Population growth for the area was primarily driven by interstate migration, which contributed approximately 71.5% of overall population gains during recent periods, although all drivers, including natural growth and overseas migration, were positive factors.

AreaSearch is adopting ABS/Geoscience Australia projections for each SA2 area, as released in 2024 with 2022 as the base year. For any SA2 areas not covered by this data, AreaSearch is utilizing the VIC State Government's Regional/LGA projections released in 2023, with adjustments made employing a method of weighted aggregation of population growth from LGA to SA2 levels. Growth rates by age group from these aggregations are also applied across all areas for years 2032 to 2041. Regarding demographic trends, exceptional growth, placing in the top 10 percent of Australian statistical areas, is predicted over the period, with the area expected to grow by 50,909 persons by 2041 based on the latest annual ERP population numbers, reflecting an increase of 151.8% in total over the 17 years.

Frequently Asked Questions - Population

What is the latest population estimate for the Wallan SA2?
Total population for the Wallan SA2 was estimated to be approximately 31,504 as at Feb 26. This is based upon an estimated resident population of 28,416 from the ABS up to June 2024.
How has the population in the Wallan SA2 changed since 2021?
The wallan sa2 has added approximately 8,877 people and shown a 39.23% increase from the 22,627 people recorded at the 2021 Census period.
What is the population density in the Wallan SA2?
The population density in the Wallan SA2 is estimated at 62 persons per square kilometer based on the latest population estimate.
How much has the population grown over the past 10 years in the Wallan SA2?
Over the past 10 years, the population in the Wallan SA2 has shown a compound annual growth rate of 6.7% per annum.
What are the main drivers of population growth in the Wallan SA2?
Population growth in the Wallan SA2 is driven by: Interstate migration (71.5%), Natural increase (21.8%), Overseas migration (6.7%). The primary driver is Interstate migration, contributing 71.5% of overall population gains.

Development

Table Chart PROFILE FAQ

The level of residential development activity in Wallan was found to be higher than 90% of real estate markets across the country

Wallan has averaged around 853 new dwelling approvals per year, totalling 4,269 homes over the past 5 financial years. So far in FY-26368 approvals have been recorded. Given an average of 1.9 new residents per year per dwelling constructed over the past 5 financial years (between FY-21 and FY-25), supply and demand appear well-balanced, creating stable market conditions, while new properties are constructed at an average value of $269,000—below regional norms—reflecting more affordable housing options for purchasers. Additionally, $18.7 million in commercial development approvals have been recorded this financial year, demonstrating moderate levels of commercial development.

Compared to Greater Melbourne, Wallan has 160.0% more new home approvals (per person), which should provide buyers with ample choice. This activity is substantially higher than nationally, suggesting strong developer confidence in the location. New building activity shows 94.0% detached dwellings and 6.0% townhouses or apartments, maintaining the area's traditional low density character with a focus on family homes appealing to those seeking space. With around 33 people per dwelling approval, Wallan shows characteristics of a growth area.

Looking ahead, Wallan is expected to grow by 47,820 residents through to 2041 (from the latest AreaSearch quarterly estimate). Building activity is keeping pace with growth projections, though buyers may experience heightened competition as the population grows.

Frequently Asked Questions - Development

How many dwelling approvals have occurred in the Wallan SA2 recently?
Dwelling approval activity in the the Wallan SA2 area has seen 1,653 residential approvals over the past two financial years, based on AreaSearch's SA2 aggregation method. The Wallan SA2's current population of 31,504 has been supported by 853 approvals on average over recent years.
How does the Wallan SA2's development activity compare to the broader region?
The Wallan SA2 has seen 3.73 approvals per 100 people in recent years, compared to 0.91 approvals in the broader region. This means that one dwelling has been approved for every 33 people in the Wallan SA2, compared to one for every 122 in the broader region.
Is the Wallan SA2 keeping up with housing demand?
With the population expected to increase by 47,820 people by 2041, around 15,940 new dwellings will be necessary. Recent approval levels may be insufficient to meet these forecasts, considering the census average of 3.0 persons per dwelling.
What has been the trend in development approvals over the past five years in the Wallan SA2?
Looking at development activity over the past five years, the Wallan SA2's approval levels have been below the yearly average of 853, indicating a recent decline in approval activity.
How many dwellings will be needed to accommodate future population growth in the Wallan SA2?
The population in the Wallan SA2 is expected to grow by 47,820 people by 2041, necessitating approximately 15,940 new dwellings. This calculation is based on the current census average of 3.0 persons per dwelling in the area.
How does recent development compare to population growth in the Wallan SA2?
Over the past five years, the population in the Wallan SA2 has grown by approximately 20,499 people, while 4,269 residential approvals were recorded. This equates to a ratio of 4.8 people added for each new dwelling approval. This high ratio suggests strong population growth relative to housing supply, potentially indicating unmet housing demand.
Are there opportunities for residential developers in the Wallan SA2?
With dwelling approval activity running at an average of 853 approvals per year and a population of 31,504, the market appears to be reasonably balanced between supply and demand, presenting moderate opportunities for well-positioned developments. With the population expected to increase by 47,820 people by 2041, around 15,940 new dwellings will be necessary. Current approval trends may be insufficient to meet forecast demand, indicating strong development opportunities.

Infrastructure

PROFILE FAQ

Wallan has strong levels of nearby infrastructure activity, ranking in the top 40% nationally

Nothing can influence an area's performance as much as changes to local infrastructure, major projects, and planning initiatives. In total 62 projects have been identified by AreaSearch that are likely to have an impact on the area. Key projects include the Beveridge North West Precinct Structure Plan, Wallan Junction, Wallara Waters, and the Darraweit Road Upgrade, with the list below detailing those likely to be of most relevance.

Professional plan users can use the search below to filter and access additional projects.

INFRASTRUCTURE SEARCH
All Selected

AI Generated Denotes AI-based impression for illustrative purposes only, not to be taken as definitive under any circumstances. Please follow links and conduct other investigations from the project's source for actual imagery. Developers and project owners wishing us to use original imagery please Contact Us and we will do so.

Frequently Asked Questions - Infrastructure

What are some of the major infrastructure and planning changes likely to influence the Wallan SA2?
Key infrastructure and planning changes likely to influence the Wallan SA2 include: Beveridge North West Precinct Structure Plan (Approved); Wallan Junction (Completed); Wallara Waters (Construction); Darraweit Road Upgrade (Construction); and Wallan Town Heart (Completed). These projects represent significant developments that will shape the area's future infrastructure landscape.
What types of infrastructure projects are impacting the Wallan SA2?
Infrastructure development impacting the Wallan SA2 spans multiple sectors including Communities, Precincts & Urban Renewal, Retail, and Residential Development, among others.
What is the scale of infrastructure investment impacting the Wallan SA2?
Infrastructure investment analysis indicates substantial capital deployment exceeding $11.4 billion in projects that will impact the extended area, with a notable concentration of investment within the immediate the Wallan SA2 vicinity.
How does the Wallan SA2's infrastructure development compare to other areas?
With an infrastructure score in the top 40%, the Wallan SA2 demonstrates above-average development activity compared to national benchmarks.
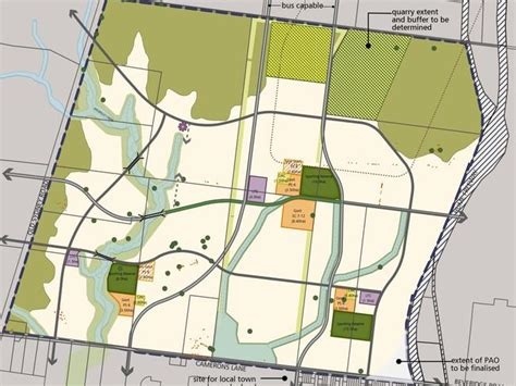
Beveridge North West Precinct Structure Plan
Category: Communities, Precincts & Urban Renewal
Stage: Approved | Est. Comp: 2052
Source / Links: Link 1   Link 2  

The Beveridge North West Precinct Structure Plan (PSP) is a massive urban growth project covering 1,275 hectares within the Northern Growth Corridor. Approved in August 2025 via Amendment C158mith, the plan facilitates the delivery of 15,000 new homes for approximately 47,000 residents. Key infrastructure includes four local town centres, eight government schools, and 320 hectares of open space and waterways. A controversial basalt quarry operated by Conundrum Holdings is approved within the precinct under strict controls, including a 2km buffer and a mandatory rehabilitation deadline of 2052. Development is staged, with initial stages focused on 2,400 homes and later phases contingent on the $900 million Camerons Lane interchange on the Hume Freeway.

Communities, Precincts & Urban Renewal

Lyra Local Convenience Centre
Category: Retail
Stage: Proposed | Est. Comp: 2027
Source / Links: Link 1   Link 2  

The Lyra Local Convenience Centre is a 9,432 sqm mixed-use island site located within Stockland's Lyra masterplanned community in Beveridge. Positioned on Stewart Street, the site is designed to serve as a convenience-focused hub with over 400m of road frontage. Potential uses for the site include a supermarket, childcare facility, quick service retail (QSR), medical services, and specialty everyday retail, subject to council approval. The site is currently being marketed for sale, indicating it remains in the planning and proposal phase while the broader Lyra estate of 1,370 lots continues residential development.

Retail

Wallan Junction
Category: Retail
Stage: Completed | Est. Comp: 2023
Source / Links: Link 1   Link 2  

A large-format retail precinct developed by McMullin, featuring five tenancies totaling 3300m2 and a 7-Eleven store. It includes retailers such as 7-Eleven, Autobarn, Pets Domain, Salvos, Pre-Mix King, Fantastic Variety Store, and MyCar, serving local residents and travellers with a modern country-style design.

Retail

Coles Supermarket Beveridge
Category: Retail
Stage: Dev. Approval | Est. Comp: 2026
Source / Links: Link 1   Link 2  

Planning permit approved by Mitchell Shire Council for a full-line Coles supermarket on the west side of Camerons Lane and Patterson Road. Council and local media indicate the developer is targeting an opening in mid-to-late 2026.

Retail

Springridge Estate
Category: Communities, Precincts & Urban Renewal
Stage: Construction | Est. Comp: 2028
Source / Links: Link 1   

38-hectare master-planned estate by Synergy Living featuring country-style living with parklands, wetlands and waterways. 1,000+ lot master planned community with breathtaking views across Wallan's beautifully undulating countryside.

Communities, Precincts & Urban Renewal

Watson Street Diamond Interchange
Category: Transport & Logistics
Stage: Planning | Est. Comp: 2028
Source / Links: Link 1   

Major road infrastructure project to create south-facing ramps on and off the Hume Freeway at Watson Street. Will improve traffic flow and reduce congestion for growing Wallan community.

Transport & Logistics

Wallan Town Heart
Category: Communities, Precincts & Urban Renewal
Stage: Completed | Est. Comp: 2018
Source / Links: Link 1   Link 2  

The $4.1 million Wallan Town Heart project transforms the centre of Wallan into a more connected and vibrant community hub by improving connections between shops and Hadfield Park, enhancing safety, improving roads and car parking, and beautifying the area with a new town square, signalised pedestrian crossing, additional car parks, and landscaping.

Communities, Precincts & Urban Renewal

Muyan Primary School (formerly Wallan East Primary School)
Category: Education & Training
Stage: Construction | Est. Comp: 2026
Source / Links: Link 1   Link 2  

New Victorian Government primary school for up to 525 students, opening Term 1, 2026. Facilities include an administration and library building with art, science and food technology spaces, two learning neighbourhoods, a community hub, hard courts and a sports field.

Education & Training

Employment

Table Chart PROFILE FAQ

Wallan has seen below average employment performance when compared to national benchmarks

Wallan possesses a skilled workforce, with the construction sector a particular standout in terms of representation, an unemployment rate of 5.3%, and relative employment stability over the past year. As of December 2025, 15,361 residents are in work while the unemployment rate is 0.6% above Greater Melbourne's rate of 4.8%, and workforce participation is fairly standard (75.6% compared to Greater Melbourne's 71.3%). Based on Census responses, a moderate 17.9% of residents were found to work from home, though Covid-19 lockdown impacts should be considered.

Leading employment industries among residents comprise construction, health care & social assistance, and manufacturing. The area shows particularly strong specialization in construction, with an employment share of 1.7 times the regional level. On the other hand, professional & technical services are under-represented, with only 4.1% of Wallan's workforce compared to 10.1% in Greater Melbourne. The area appears to offer limited employment opportunities locally, as indicated by the count of the Census working population versus the resident population.

Based on AreaSearch analysis of SALM and ABS data, during the year to December 2025, employment levels increased by 0.5% and the labour force increased by 1.6%, causing the unemployment rate to rise by 1.1 percentage points. In contrast, Greater Melbourne experienced employment growth of 2.4% and labour force growth of 2.8%, with a 0.3 percentage point rise. Jobs and Skills Australia's national employment forecasts from May-25 can offer further insight into potential future demand within Wallan. These projections, covering five and ten-year periods, have been mapped against the local employment profile to estimate growth patterns. While national employment is forecast to expand by 6.6% over five years and 13.7% over ten years, growth rates differ significantly between industry sectors. Applying these industry-specific projections to Wallan's employment mix suggests local employment should increase by 6.1% over five years and 12.7% over ten years (please note this is a simple weighting extrapolation for illustrative purposes and does not take into account localised population projections).

Frequently Asked Questions - Employment

What is the employment situation in the Wallan SA2?
As of December 2025, the Wallan SA2 has approximately 15,361 employed residents with an unemployment rate of 5.3%. The unemployment rate is moderate, indicating some available workforce capacity. Employment indicators are below the national average, suggesting room for improvement.
How does the Wallan SA2's unemployment rate compare to the broader region?
As of December 2025, the unemployment rate in the Wallan SA2 stands at 5.3%, which is 0.6 percentage points above Greater Melbourne's rate of 4.8%. This higher unemployment rate may indicate local labour market challenges. For comparison, the national unemployment rate is 4.2%.
What are the major employment sectors in the Wallan SA2?
The employment landscape in the Wallan SA2 is dominated by several key sectors. The largest employers are construction (16.1% of employment), health care & social assistance (12.9%), and manufacturing (9.8%). Other significant employers include retail trade and transport, postal & warehousing.
How has employment changed recently in the Wallan SA2?
Over the past year to December 2025, the Wallan SA2 has experienced employment growth, with total employment increasing while the labour force increased. As a result, the unemployment rate has rise. By comparison, Greater Melbourne saw employment increased and its unemployment rate rose.
What is the workforce participation rate in the Wallan SA2?
The workforce participation rate in the Wallan SA2 is 75.6%, which represents the proportion of working-age residents who are either employed or actively seeking work. This high participation rate indicates strong workforce engagement and economic vitality. The local rate leading the Greater Melbourne average of 71.3%, showing similar workforce dynamics to the broader region.
Which industries are over-represented in the Wallan SA2's employment market?
The wallan sa2 shows notable specialization in construction, which employs 16.1% of the local workforce compared to 9.7% regionally. This concentration suggests the area has developed competitive advantages in this sector. The area also shows above-average employment in 2 other sectors, contributing to a distinctive economic profile.
What are the employment growth prospects for the Wallan SA2?
Based on Jobs and Skills Australia projections applied to the Wallan SA2's industry mix, employment is expected to grow by 6.1% over the next five years and 12.7% over ten years. This compares to national growth expectations of 6.6% over five years. Steady growth is anticipated across multiple sectors, providing diverse employment opportunities.
How does the job market in the Wallan SA2 compare nationally?
The wallan sa2's employment market shows below-average performance in national comparisons. While employment opportunities exist, the area faces more challenges than many other regions. Recent job advertisement trends show the broader employment region saw a 8.9% decline, ranking 34.0th out of 37 regions nationally.
What employment opportunities exist for skilled workers in the Wallan SA2?
Skilled workers will find good opportunities in the Wallan SA2, with skilled sectors accounting for 27.9% of employment. Key sectors for skilled workers include health care & social assistance (12.9%), education & training (7.6%), and professional & technical (4.1%). With projected employment growth of 6.1% over five years, demand for skilled workers is expected to remain strong.

Income

Table Chart PROFILE FAQ

Income analysis reveals strong economic positioning, with the area outperforming 60% of locations assessed nationally by AreaSearch

As per AreaSearch's latest postcode level ATO data released for FY-23, the Wallan SA2's median income among taxpayers is $57,613, with an average of $65,520. This is slightly lower than the national average, and compares to Greater Melbourne's median of $57,688 and average of $75,164. Based on Wage Price Index growth of 8.25% since FY-23, current estimates would be approximately $62,366 (median) and $70,925 (average) as of September 2025. Census data reveals household, family and personal incomes in Wallan cluster around the 63rd percentile nationally. Distribution data shows the $1,500 - 2,999 earnings band captures 41.7% of the community (13,137 individuals), aligning with the broader area where this cohort likewise represents 32.8%. High housing costs consume 15.9% of income, though strong earnings still place disposable income at the 65th percentile and the area's SEIFA income ranking places it in the 5th decile.

Frequently Asked Questions - Income

What is the median taxable income in the Wallan SA2?
Based on Wage Price Index adjustments to September 2025, the estimated median taxable income in the Wallan SA2 is approximately $62,366. The official ATO data from FY-23 recorded a median of $57,613.
What is the average taxable income in the Wallan SA2?
Based on Wage Price Index adjustments to September 2025, the estimated average taxable income in the Wallan SA2 is approximately $70,925. The official ATO data from FY-23 recorded an average of $65,520.
How does the median taxable income in the Wallan SA2 compare to the region?
Based on Wage Price Index adjustments to September 2025, the estimated median taxable income in the Wallan SA2 is approximately $62,366 compared to $62,447 in Greater Melbourne. The official ATO data from FY-23 shows $57,613 and $57,688 respectively.
How does the average taxable income in the Wallan SA2 compare to the region?
Based on Wage Price Index adjustments to September 2025, the estimated average taxable income in the Wallan SA2 is approximately $70,925 compared to $81,365 in Greater Melbourne. The official ATO data from FY-23 shows $65,520 and $75,164 respectively.
What are the main income cohorts in the Wallan SA2 according to the 2021 Census?
As per the 2021 Census, the income bracket containing the largest proportion (~41.7% / 13,137 persons) of the Wallan SA2's population is the $1,500 - 2,999 cohort.
How do the main income cohorts in the Wallan SA2 compare to the region?
The largest income cohort in the Wallan SA2 is the $1,500 - 2,999 group, representing about 41.7% of the population. In comparison, Greater Melbourne's largest income cohort is the $1,500 - 2,999 group, representing 32.8% of its population, according to the 2021 Census.
What is the median household income in the Wallan SA2 according to the 2021 Census?
The 2021 Census data indicates that the median household income in the Wallan SA2 is $2,002/wk.
What is the median family income in the Wallan SA2 according to the 2021 Census?
According to the 2021 Census, the median family income in the Wallan SA2 is $2,127/wk.
What is the median personal income in the Wallan SA2 according to the 2021 Census?
The 2021 Census shows that the median personal income in the Wallan SA2 is $862/wk.
How does the Wallan SA2's income rank nationally?
AreaSearch's latest postcode level ATO data for FY-23 reveals that income in the Wallan SA2 is just below the national average, with the median assessed at $57,613 while the average income stands at $65,520. This contrasts to Greater Melbourne's figures of a median income of $57,688 and an average income of $75,164. Based on Wage Price Index growth of 8.25% since FY-23, current estimates would be approximately $62,366 (median) and $70,925 (average) as of September 2025.
What is the disposable income in the Wallan SA2?
The estimated disposable income in the Wallan SA2 is $7,298 per year according to AreaSearch analysis.
How does the Wallan SA2's disposable income compare to the region?
The wallan sa2's disposable income is $7,298 compared to $6,948 for Greater Melbourne, based on AreaSearch analysis.

Housing

Table Chart PROFILE FAQ

Wallan is characterized by a predominantly suburban housing profile, with ownership patterns similar to the broader region

Dwelling structure within Wallan, as evaluated at the latest Census, comprised 94.9% houses and 5.1% other dwellings (semi-detached, apartments, 'other' dwellings), in comparison to Melbourne metro's 67.9% houses and 32.1% other dwellings. Meanwhile, the level of home ownership within Wallan lagged that of Melbourne metro, at 21.0%, with the remainder of dwellings either mortgaged (60.2%) or rented (18.8%). The median monthly mortgage repayment in the area was below the Melbourne metro average at $1,800, while the median weekly rent figure was recorded at $361, compared to Melbourne metro's $2,000 and $390. Nationally, Wallan's mortgage repayments are lower than the Australian average of $1,863, while rents are less than the national figure of $375.

Frequently Asked Questions - Housing

What percentage of homes are owned vs rented in the Wallan SA2?
In the Wallan SA2, 21.0% of homes are owned outright, 60.2% are owned with a mortgage, and 18.8% are rented.
What percentage of dwellings in the Wallan SA2 are houses?
According to the latest data, 94.9% of dwellings in the Wallan SA2 are houses.
What percentage of dwellings in the Wallan SA2 are apartments or units?
In the Wallan SA2, 0.1% of dwellings are apartments or units, with an additional 4.9% being semi-detached dwellings.
What is the level of outright home ownership in the Wallan SA2?
Outright home ownership in the Wallan SA2 stands at 21.0%, compared to 30.7% in Greater Melbourne.
What is the median monthly mortgage repayment in the Wallan SA2?
The median monthly mortgage repayment in the Wallan SA2 is $1,800, compared to $2,000 in Greater Melbourne.
What is the median weekly rent in the Wallan SA2?
The median weekly rent in the Wallan SA2 is $361, compared to $390 in Greater Melbourne.
What is the distribution of rental prices in the Wallan SA2?
In the Wallan SA2, 1.4% of rentals are $0-149/week, 32.8% are $150-349/week, 64.0% are $350-649/week, 1.5% are $650-949/week, and 0.4% are $950+/week.
What is the average monthly housing cost in the Wallan SA2?
The aggregate monthly housing cost in the Wallan SA2 is $1,377, which represents the average monthly cost across all housing types.
What percentage of income do residents spend on housing in the Wallan SA2?
In the Wallan SA2, households with mortgages typically spend 20.7% of their income on mortgage repayments, while renters spend 18.0% of their income on rent.
How crowded are homes in the Wallan SA2?
The average persons per bedroom ratio in the Wallan SA2 is 0.8, indicating the level of household density.
How does housing affordability in the Wallan SA2 compare to the region?
Housing affordability in the Wallan SA2 shows mortgage holders spending 20.7% of income on repayments (vs 24.3% regionally), while renters spend 18.0% of income on rent (vs 20.5% regionally).
What types of dwellings are most common in the Wallan SA2?
The dwelling mix in the Wallan SA2 consists of 94.9% detached houses, 4.9% semi-detached dwellings, 0.1% apartments, and 0.1% other dwelling types.
What is the weighted average housing cost based on tenure mix in the Wallan SA2?
Factoring in the ownership distribution, the weighted average monthly housing cost is approximately $1,377. This accounts for outright owners paying no housing costs, mortgage holders paying $1,800/month, and renters paying $1,563/month.
How affordable is housing in the Wallan SA2 relative to local incomes?
Housing in Wallan consumes approximately 15.9% of median household income ($8,669 monthly), indicating costs are highly affordable. The generally accepted benchmark is that housing should not exceed 30% of household income.
How do proposed developments compare to existing housing types in the Wallan SA2?
Recent development applications in Wallan show attached dwellings contributing 4% of approvals compared to 5% of existing stock, while detached houses represent 96% of applications versus 95% of current dwellings. This suggests development patterns consistent with existing housing mix. Density increases remain below national trends.

Household Composition

Table Chart PROFILE FAQ

Wallan features high concentrations of family households, with a higher-than-average median household size

Family households dominate at 83.0% of all households, comprising 45.0% couples with children, 24.7% couples without children, and 12.5% single parent families. Non-family households make up the remaining 17.0%, with lone person households at 15.2% and group households comprising 1.7% of the total. The median household size of 3.0 people is larger than the Greater Melbourne average of 2.6.

Frequently Asked Questions - Households

How many households are in the Wallan SA2?
As of the 2021 Census, the Wallan SA2 had 7,227 households. Based on population growth patterns, this has grown by approximately 39.2% to an estimated 10,062 households today.
What is the typical household size?
The median household size in the Wallan SA2 is 3.0 people. This compares to 2.6 in Greater Melbourne and reflects the area's household composition mix.
What types of households are most common?
Family households dominate at 83.0% of all households. The remaining households consist of lone person households (15.2%), group households (1.7%), and other household types (0.0%).
How are families structured in the area?
Among the 5,998 family households, 45.0% are couples with children, 24.7% are couples without children at home, and 12.5% are single parent families. This mix shapes local demand for schools, family services, and housing types.
How does the Wallan SA2 compare to regional household patterns?
Compared to Greater Melbourne, the Wallan SA2 shows distinct household patterns. Family households are notably over-represented at 83.0% (versus 70.9% regionally). Conversely, lone person households are under-represented at 15.2% compared to the regional 24.8%. This family-oriented profile influences local demand for family homes, schools, and children's services.
What is the average family size?
Families in the Wallan SA2 have an average of 1.7 children, slightly above the Greater Melbourne average of 1.4. This influences local demand for child-related services and larger family homes.
What are the marriage patterns in the Wallan SA2?
Marriage patterns reveal 49.5% of the adult population are currently married, while 36.9% have never married. This compares to 47.0% married and 38.0% never married across Greater Melbourne.
How significant are single-person households?
Single-person households represent 15.2% of all households in the Wallan SA2, notably lower than the regional average of 24.8%. This affects demand for smaller dwellings and single-person accommodation.
Are shared living arrangements common?
Group households (unrelated people sharing) account for 1.7% of households, well below the Greater Melbourne average of 4.3%. This low rate suggests limited student or young professional shared accommodation.
Loading household composition data...

Local Schools & Education

Table Chart PROFILE FAQ

Educational attainment in Wallan aligns closely with national averages, showing typical qualification patterns and performance metrics

The area faces educational challenges, with university qualification rates (18.4%) substantially below the Greater Melbourne average of 37.0%. This represents both a challenge and an opportunity for targeted educational initiatives. Bachelor degrees lead at 12.0%, followed by postgraduate qualifications (4.1%) and graduate diplomas (2.3%). Trade and technical skills feature prominently, with 41.7% of residents aged 15+ holding vocational credentials, including advanced diplomas (12.6%) and certificates (29.1%).

Educational participation is notably high, with 32.0% of residents currently enrolled in formal education. This includes 12.7% in primary education, 7.8% in secondary education, and 3.3% pursuing tertiary education.

Frequently Asked Questions - Education

What percentage of people in the Wallan SA2 have university qualifications?
18.4% of people aged 15 and over in the Wallan SA2 have university qualifications, compared to 37.0% in the broader region.
What percentage of people in the Wallan SA2 have no formal qualifications?
39.8% of people aged 15 and over in the Wallan SA2 have no formal qualifications, compared to 35.2% regionally.
How does the Wallan SA2's education level compare to national averages?
The wallan sa2 ranks in the 50th percentile nationally for education based on AreaSearch's analysis of qualification and performance metrics.
What types of qualifications are most common in the Wallan SA2?
The most common qualifications in the Wallan SA2 are: Certificate (29.1%), Advanced Diploma (12.6%), Bachelor Degree (12.0%).
What proportion of the Wallan SA2's population is currently attending educational institutions?
32.0% of the population in the Wallan SA2 is currently engaged in formal education, with 12.7% in primary school, 7.8% in secondary school, 3.3% at university.
What is the ICSEA score for schools in the Wallan SA2?
The average ICSEA (Index of Community Socio-Educational Advantage) score for schools in the Wallan SA2 is 995, indicating below-average socio-educational advantage compared to the national average of 1000.
How many schools are located within the Wallan SA2?
There are 8 schools within the Wallan SA2, with a combined enrollment of approximately 3,606 students.
What types of schools are available in the Wallan SA2?
The wallan sa2 includes 7 primary schools, 1 secondary school.

Schools Detail

Nearby Services & Amenities

PROFILE FAQ

Transport

Table Chart PROFILE FAQ

Transport servicing is low compared to other areas nationally based on assessment of service frequency, route connectivity and accessibility

Public transport analysis reveals 47 active transport stops operating within Wallan, comprising a mix of trains and buses. These stops are serviced by 9 individual routes, collectively providing 742 weekly passenger trips. Transport accessibility is rated as limited, with residents typically located 661 meters from the nearest transport stop. As a primarily residential area, most residents commute outward; the car remains the dominant mode at 94%. Vehicle ownership averages 1.9 per dwelling, which is above the regional average. Some 17.9% of residents work from home (2021 Census; may reflect COVID-19 conditions).

Service frequency averages 106 trips per day across all routes, equating to approximately 15 weekly trips per individual stop.

Frequently Asked Questions - Transport

How many public transport stops are in Wallan?
There are 47 public transport stops within the Wallan SA2.
How frequent are the transport services in Wallan?
the Wallan SA2 has 742 weekly trips across 9 routes, averaging 106 trips per day.
How far are residents from public transport in Wallan?
On average, residential properties are 661 meters from the nearest transport stop.

Transport Stops Detail

Health

Table Chart PROFILE FAQ

The level of general health in Wallan is notably higher than the national average with prevalence of common health conditions low among the general population though higher than the nation's average across older, at risk cohorts

Wallan demonstrates above-average health outcomes, based on AreaSearch's assessment of mortality rates and chronic condition prevalence. The prevalence of common health conditions is low among the general population, though higher than the national average across older, at-risk cohorts. The rate of private health cover slightly lags that of the average SA2 area at approximately 52% of the total population (~16,350 people), compared to 56.7% across Greater Melbourne.

The most common medical conditions in the area are asthma and mental health issues, impacting 9.1% and 8.2% of residents, respectively, while 71.4% declared themselves as completely clear of medical ailments compared to 72.6% across Greater Melbourne. Health outcomes among the working-age population are broadly typical. The area has 9.9% of residents aged 65 and over (3,115 people), which is lower than the 15.1% in Greater Melbourne. Health outcomes among seniors present some challenges, though they rank lower nationally than the broader population.

Frequently Asked Questions - Health

How many people in the Wallan SA2 have private health insurance?
Around 51.9% of people in the Wallan SA2 are covered by private health insurance, which compares to 56.7% in the broader region of Greater Melbourne.
What percentage of the population requires ongoing medical assistance in the Wallan SA2?
In the Wallan SA2, 4.6% of the population is identified as requiring ongoing medical assistance. This figure is slightly different from the regional average, where 5.5% of people in Greater Melbourne require similar assistance.
How prevalent is asthma in the Wallan SA2?
9.1% of people in the Wallan SA2 are diagnosed with asthma. In comparison, 7.3% of the population across Greater Melbourne is affected by asthma.
What percentage of people have diabetes in the Wallan SA2?
Diabetes affects 4.1% of the the Wallan SA2 population, while in the surrounding region, 4.1% of people are diagnosed with diabetes.
What is the percentage of people with heart disease in the Wallan SA2?
2.6% of people in the Wallan SA2 have heart disease. Across the region of Greater Melbourne, 3.1% of the population is affected by heart disease.
How does the Wallan SA2 compare to the region in terms of overall private health coverage?
In the Wallan SA2, 51.9% of the population are estimated to have private health insurance. Comparatively, Greater Melbourne sees an estimated private health coverage rate of 56.7%.

Cultural Diversity

Table Chart PROFILE FAQ

The level of cultural diversity witnessed in Wallan was found to be slightly above average when compared nationally for a number of language and cultural background related metrics

Wallan was found to be above average in terms of cultural diversity, with 19.9% of its population born overseas and 18.9% speaking a language other than English at home. The main religion in Wallan is Christianity, which makes up 45.0% of people in Wallan. However, the most apparent overrepresentation was in Other, which comprises 5.3% of the population, compared to 2.3% across Greater Melbourne.

In terms of ancestry (country of birth of parents), the top three represented groups in Wallan are Australian, comprising 26.7% of the population, which is substantially higher than the regional average of 18.4%, English, comprising 24.5% of the population, and Other, comprising 10.7% of the population. Additionally, there are notable divergences in the representation of certain other ethnic groups: Maltese is notably overrepresented at 2.2% of Wallan (vs 1.1% regionally), Macedonian at 0.9% (vs 0.7%) and Italian at 5.5% (vs 5.2%).

Frequently Asked Questions - Diversity

What is the level of cultural diversity in the Wallan SA2?
Wallan was found to be above average in terms of cultural diversity, with 19.9% of its population born overseas and 18.9% speaking a language other than English at home.
What is the most common religion in the Wallan SA2?
The main religion in Wallan was found to be Christianity, which makes up 45.0% of people in Wallan. However, the most apparent overrepresentation was in Other, which comprises 5.3% of the population, compared to 2.3% across Greater Melbourne.
What are the top countries of origin in the Wallan SA2?
In terms of ancestry (country of birth of parents), the top three represented groups in Wallan are Australian, comprising 26.7% of the population, which is substantially higher than the regional average of 18.4%, English, comprising 24.5% of the population, and Other, comprising 10.7% of the population. Additionally, there are notable divergences in the representation of certain other ethnic groups: Maltese is notably overrepresented at 2.2% of Wallan (vs 1.1% regionally), Macedonian at 0.9% (vs 0.7%) and Italian at 5.5% (vs 5.2%).
How does the percentage of people born overseas compare to the regional average?
19.9% of the the Wallan SA2 population was born overseas, compared to 37.3% regionally.
What percentage of the the Wallan SA2 population speaks a language other than English at home?
18.9% of the population in the Wallan SA2 speaks a language other than English at home, compared to 35.9% in the wider region.
How many people in the Wallan SA2 identify as Australian Aboriginal?
1.4% of the the Wallan SA2 population identifies as Australian Aboriginal, compared to 0.5% in the region.
What is the citizenship status of the population in the Wallan SA2?
86.6% of the the Wallan SA2 population holds citizenship, compared to 81.1% in the wider region.

Age

Table Chart PROFILE FAQ

Wallan's young demographic places it in the bottom 15% of areas nationwide

At 32 years, Wallan's median age is materially younger than the Greater Melbourne average of 37 and significantly lower than the 38-year national average. Relative to Greater Melbourne, Wallan has a higher concentration of 5 - 14 residents (16.1%) but fewer 75 - 84 year-olds (2.9%). Post-2021 Census data shows the 35 to 44 age group has grown from 15.5% to 18.5% of the population. Conversely, the 25 to 34 cohort has declined from 16.5% to 15.0% and the 55 to 64 group dropped from 10.3% to 9.3%. Demographic modeling suggests Wallan's age profile will evolve significantly by 2041. The 35 to 44 cohort shows the strongest projected growth at 139%, adding 8,125 residents to reach 13,951.

Frequently Asked Questions - Age

What is the median age in the Wallan SA2?
According to the latest data, the median age in the Wallan SA2 is 32 years.
How does the Wallan SA2's median age compare to broader areas?
At 32 years, Wallan is 5 years younger than the Greater Melbourne average (37 years) and 6 years younger than the national average (38 years).
What age groups are over-represented in the Wallan SA2?
The most over-represented age group in the Wallan SA2 compared to the Greater Melbourne region is the 5 - 14 group, making up 16.1% of the population.
What age groups are under-represented in the Wallan SA2?
The most under-represented age group in the Wallan SA2 compared to the Greater Melbourne region is the 75 - 84 group, making up 2.9% of the population.
Are there age groups with notable population variances?
Yes, certain age groups in the Wallan SA2 show significant variance compared to the Greater Melbourne region. The most over-represented age group is 0-4 year-olds (8.3% vs 5.8%). The most under-represented age groups are 85+ year-olds (0.6% vs 2.0%) and 75-84 year-olds (2.9% vs 5.2%).
What is the percentage of children (0-14 years) in the Wallan SA2?
The percentage of children aged 0-14 years in the Wallan SA2 is 24.4%.
What is the percentage of older people (65+ years) in the Wallan SA2?
The percentage of people aged 65 and over in the Wallan SA2 is 9.9%.

Nearby Areas