Chart Color Schemes
est. as @ -- *
ABS ERP | -- people | --
2021 Census | -- people
Sales Activity
Curious about local property values? Filter the chart to assess the volume and appreciation (including resales) trends and regional comparisons, or scroll to the map below view this information at an individual property level.
Find a Recent Sale
Sales Detail
Population
Bracken Ridge is positioned among the lower quartile of areas assessed nationally for population growth based on AreaSearch's assessment of recent, and medium term trends
Bracken Ridge's population is approximately 18,753 as of August 2025. This figure represents an increase of 1,265 people, a 7.2% rise from the 2021 Census count of 17,488 inhabitants. The growth was inferred from the Australian Bureau of Statistics' estimated resident population of 18,625 in June 2024 and an additional 165 validated new addresses since the Census date. This results in a population density of 2,312 persons per square kilometer, placing Bracken Ridge in the upper quartile relative to other locations assessed by AreaSearch. The area's growth rate exceeded that of its SA3 region, with overseas migration contributing approximately 55.0% of overall population gains during recent periods. For projections, AreaSearch uses ABS/Geoscience Australia figures released in 2024 with a base year of 2022 for each SA2 area.
For areas not covered by this data and years post-2032, Queensland State Government's SA2 area projections from 2023 (based on 2021 data) are adopted, applying proportional growth weightings in line with ABS Greater Capital Region projections released in 2023 using 2022 data for each age cohort. By 2041, the population is projected to grow by 545 persons, representing a total gain of 2.2% over the 17-year period.
Frequently Asked Questions - Population
Development
Recent residential development output has been above average within Bracken Ridge when compared nationally
Bracken Ridge has seen around 43 new homes approved annually. The Australian Bureau of Statistics produces development approval data on a financial year basis. Over the past five financial years, from FY20 to FY25, approximately 219 dwellings were approved in Bracken Ridge. In FY26, 13 dwellings have been recorded so far.
On average, 3.9 people move to the area annually for each dwelling built over these five years. This indicates that demand significantly outpaces supply, which typically puts upward pressure on prices and increases competition among buyers. New properties are constructed at an average expected construction cost value of $430,000, consistent with regional patterns. Additionally, $14.7 million in commercial development approvals have been recorded this financial year, demonstrating moderate levels of commercial development. Compared to Greater Brisbane, Bracken Ridge records about three-quarters the building activity per person.
When measured nationally, Bracken Ridge places among the 46th percentile of areas assessed, indicating more limited choices for buyers and supporting demand for existing homes. However, development activity has picked up in recent periods. New building activity shows 57.0% detached houses and 43.0% attached dwellings, featuring an increasing blend of attached housing types offering choices across price ranges. This represents a notable shift from the area's existing housing composition, currently at 88.0% houses. The location has approximately 375 people per dwelling approval, reflecting an established area. Population forecasts indicate Bracken Ridge will gain 417 residents through to 2041. With current construction levels, housing supply should adequately meet demand, creating favourable conditions for buyers while potentially enabling growth that exceeds current forecasts.
Frequently Asked Questions - Development
Infrastructure
Bracken Ridge has moderate levels of nearby infrastructure activity, ranking in the top 50% nationally
Changes to local infrastructure significantly influence an area's performance. AreaSearch has identified 20 projects likely impacting the region. Notable ones include Brendale Data Supernode, Fern Bracken Ridge Townhomes, Brisbane Metro Northern Extension, and Bracken Ridge Tavern Renovation and Extension.
Professional plan users can use the search below to filter and access additional projects.
INFRASTRUCTURE SEARCH
Frequently Asked Questions - Infrastructure
Brendale Data Supernode
A $2.5 billion green data storage facility and battery energy storage project on a 30-hectare site by Quinbrook Infrastructure Partners. Features advanced cloud computing infrastructure with up to 800MW power capacity, renewable energy systems, cutting-edge cooling technology, and 2,000MWh battery energy storage system. Expected to serve as a critical digital infrastructure hub for South East Queensland, connecting to international sub-sea cables via the Torus dark fibre network.
 
                    Brisbane Metro Northern Extension
Planned extension of Brisbane Metro from CBD to Carseldine via Lutwyche, Kedron, Chermside, and Aspley. $50 million federal funding allocated for detailed business case development. Will provide direct high-frequency metro service to northern Brisbane suburbs including Bridgeman Downs, significantly improving regional connectivity and reducing traffic congestion. Project forms part of broader Brisbane Metro expansion ahead of 2032 Olympics.
 
                    Bridgeman Downs Underground Rail Station (Concept)
Community-led concept for a new underground rail station in the Bridgeman Downs area, linked in local media to ideas for extra tracks between Strathpine and Albion. No official Brisbane City Council project listing or approval found as of 18 August 2025. Any progression would require formal feasibility, funding and assessment by the relevant authorities.
 
                    North West Transport Corridor
Integrated 9km transport corridor between Carseldine and Everton Park via Aspley area, preserved since the 1980s. $20 million business case study examining road, rail and active transport options to address growing congestion in northern Brisbane. Includes new arterial roads, public transport infrastructure, cycling and pedestrian paths. Various alignment options being considered including busway, rail, and tunnel solutions.
 
                    Linkfield Road Overpass Upgrade
Major $176 million upgrade of Linkfield Road Overpass at Bald Hills, increasing clearance height from 4.7m to 6m and upgrading to four lanes between Gympie Road and Lacey Road intersections. Includes new separated pathway for pedestrians and cyclists, plus on-road cycle lane. Part of Federal Government's $10 billion Bruce Highway investment.
 
                    Gateway Motorway, Bracken Ridge to Pine River Upgrade
Upgrade of the Gateway Motorway between Bracken Ridge and the Pine River interchange to improve capacity, safety and network reliability. This section is being packaged and delivered with the Bruce Highway (Gateway Motorway to Dohles Rocks Road, Stage 1) as the Gateway to Bruce Upgrade (G2BU). TMR indicates procurement for a design-and-construct contractor is underway, with design activities preceding a construction start targeted from 2026.
 
                    Beams Road Upgrade Carseldine
Road upgrade and widening of Beams Road in Carseldine to improve traffic flow and safety. Project included intersection improvements and enhanced pedestrian and cycling facilities.
 
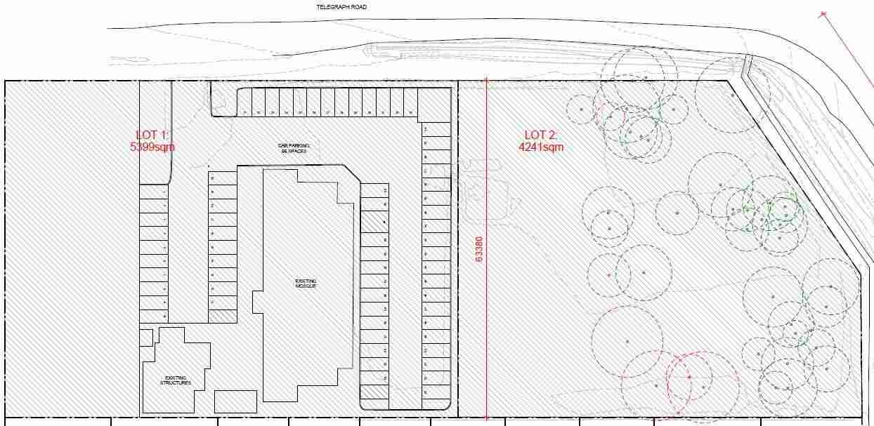
                    Lacey Road Childcare Centre
Single-storey childcare centre for 110 children at 272 Lacey Road, Bald Hills. Features 798 sqm GFA, 7 activity rooms, 2 large outdoor play areas, covered outside space, landscaping, and 22 car parking spaces. Includes subdivision to create separate lot from existing mosque. Designed by RealSpace Creative.
 
                    Employment
Employment performance in Bracken Ridge has been broadly consistent with national averages
Bracken Ridge has a skilled workforce with significant representation in essential services sectors. As of June 2025, the unemployment rate is 4.5%, with an estimated employment growth of 11.1% over the past year.
There are 10,416 residents employed, with an unemployment rate of 4.9%, which is 0.4% higher than Greater Brisbane's rate of 4.1%. The workforce participation rate is 66.6%, compared to Greater Brisbane's 64.5%. Leading employment industries among residents include health care & social assistance, retail trade, and construction.
However, professional & technical services have limited presence with 6.5% employment compared to the regional average of 8.9%. The area offers limited local employment opportunities, as indicated by the difference between Census working population and resident population. Between June 2024 and June 2025, employment increased by 11.1% while labour force grew by 10.6%, reducing the unemployment rate by 0.4 percentage points. In comparison, Greater Brisbane saw employment grow by 4.4%, labour force expand by 4.0%, with a decrease in unemployment of 0.4 percentage points. State-level data from Sep-25 shows Queensland's employment contracted by 0.23% (losing 8,070 jobs), with the state unemployment rate at 4.2%. This compares to the national unemployment rate of 4.5%, and national employment growth of 0.26%. Jobs and Skills Australia's national employment forecasts from May 2025 suggest that while overall employment is projected to expand by 6.6% over five years and 13.7% over ten years, growth rates vary significantly between industry sectors. Applying these projections to Bracken Ridge's employment mix indicates potential local growth of approximately 6.6%% over five years and 13.8% over ten years.
Frequently Asked Questions - Employment
Income
Income analysis reveals strong economic positioning, with the area outperforming 60% of locations assessed nationally by AreaSearch
Bracken Ridge had a median taxpayer income of $56,734 and an average income of $67,892 in the financial year 2022, according to postcode level ATO data aggregated by AreaSearch. These figures are higher than the national averages of $55,645 (median) and $70,520 (average) for Greater Brisbane. As of March 2025, estimated median income is approximately $63,378 and average income is $75,842, based on Wage Price Index growth of 11.71% since financial year 2022. Census data shows that incomes in Bracken Ridge cluster around the 60th percentile nationally. The largest income bracket comprises 38.0% earning $1,500-$2,999 weekly, with 7,126 residents falling into this category. After housing expenses, 85.3% of income remains for other expenses. Bracken Ridge's SEIFA income ranking places it in the 5th decile.
Frequently Asked Questions - Income
Housing
Bracken Ridge is characterized by a predominantly suburban housing profile, with above-average rates of outright home ownership
Dwelling structure in Bracken Ridge, as evaluated at the 2016 Census, consisted of 88.3% houses and 11.7% other dwellings (semi-detached, apartments, 'other' dwellings), compared to Brisbane metro's 75.4% houses and 24.7% other dwellings. Home ownership in Bracken Ridge was higher than the Brisbane metro average at 30.0%, with mortgaged dwellings at 45.4% and rented dwellings at 24.5%. The median monthly mortgage repayment in the area was $1,800, similar to the Brisbane metro average, while the median weekly rent figure was $410, compared to Brisbane metro's $375 and national averages of $1,863 for mortgage repayments and $375 for rents.
Frequently Asked Questions - Housing
Household Composition
Bracken Ridge features high concentrations of family households, with a higher-than-average median household size
Family households account for 80.7% of all households, including 38.9% couples with children, 26.7% couples without children, and 13.7% single parent families. Non-family households constitute the remaining 19.3%, with lone person households at 16.3% and group households comprising 3.0%. The median household size is 2.8 people, which is larger than the Greater Brisbane average of 2.5.
Frequently Asked Questions - Households
Local Schools & Education
Bracken Ridge performs slightly above the national average for education, showing competitive qualification levels and steady academic outcomes
The area's university qualification rate is 23.5%, significantly lower than the SA4 region average of 33.8%. Bachelor degrees are most common at 16.9%, followed by postgraduate qualifications (4.2%) and graduate diplomas (2.4%). Vocational credentials are prevalent, with 38.1% of residents aged 15+ holding them, including advanced diplomas (12.6%) and certificates (25.5%). Educational participation is high at 29.3%, comprising primary education (10.3%), secondary education (8.5%), and tertiary education (4.6%).
Bracken Ridge has a robust network of six schools educating approximately 2,921 students, with typical Australian school conditions (ICSEA: 1020) offering balanced educational opportunities. Educational provision is split between three primary and three secondary institutions.
Frequently Asked Questions - Education
Schools Detail
Nearby Services & Amenities
Transport
Transport servicing is low compared to other areas nationally based on assessment of service frequency, route connectivity and accessibility
Bracken Ridge has 76 active public transport stops, all of which are bus stops. These stops are served by seven different routes that together facilitate 903 weekly passenger trips. The accessibility of these services is considered good, with residents on average located 219 meters from the nearest stop.
On average, there are 129 daily trips across all routes, translating to roughly 11 weekly trips per individual stop.
Frequently Asked Questions - Transport
Transport Stops Detail
Health
Bracken Ridge's residents are healthier than average in comparison to broader Australia with prevalence of common health conditions quite low among the general population though higher than the nation's average across older, at risk cohorts
Bracken Ridge residents showed relatively positive health outcomes, with low prevalence of common conditions among the general population, albeit higher than national averages for older and at-risk cohorts.
Approximately 53% (~10,014 people) had private health cover. The most prevalent medical issues were mental health (8.3%) and asthma (7.8%), while 69.3% reported no medical ailments, compared to 67.8% in Greater Brisbane. Bracken Ridge has 16.7% seniors aged 65+ (3,139 people), lower than Greater Brisbane's 18.5%. Health outcomes for seniors require more attention than the broader population.
Frequently Asked Questions - Health
Cultural Diversity
Bracken Ridge was found to be more culturally diverse than the vast majority of local markets in Australia, upon assessment of a range of language and cultural background related metrics
Bracken Ridge's population showed higher cultural diversity than most local areas, with 25.9% born overseas and 17.7% speaking a language other than English at home. Christianity was the predominant religion in Bracken Ridge, accounting for 54.7%. The 'Other' religious category comprised 2.8%, slightly higher than Greater Brisbane's 3.7%.
Regarding ancestry, the top groups were English (26.5%), Australian (24.4%), and Other (9.5%). Notably, New Zealanders made up 1.1% compared to 1.1% regionally, Maori comprised 1.1% versus 0.9%, and Samoans stood at 0.7% against 0.6%.
Frequently Asked Questions - Diversity
Age
Bracken Ridge's population is slightly younger than the national pattern
Bracken Ridge's median age is 37 years, nearly matching Greater Brisbane's average of 36 and close to Australia's median of 38. Compared to Greater Brisbane, Bracken Ridge has a higher concentration of residents aged 55-64 (11.4%) but fewer residents aged 25-34 (12.0%). Between the 2021 Census and now, the population aged 75-84 has grown from 4.6% to 6.2%. Conversely, the 25-34 age group has declined from 13.3% to 12.0%. By 2041, demographic modeling suggests significant changes in Bracken Ridge's age profile. The 85+ cohort is projected to grow by 164%, adding 538 residents to reach 867. Residents aged 65 and above will drive 71% of population growth. Meanwhile, the 0-4 and 5-14 cohorts are expected to experience population declines.
 
                     
                     
                     
                     
                     
                    