Wagga Wagga - East

SA2

Rest of NSW / Wagga Wagga

Updated 10 Apr 2026 ABS 2021 113031267
Chart Color Schemes
Loading map data ...
Statistical Area (SA2) Boundary Analysis

This analysis uses ABS Statistical Areas Level 2 (SA2) boundaries, which can materially differ from Suburbs and Localities (SAL) even when sharing similar names.

SA2 boundaries are defined by the Australian Bureau of Statistics and are designed to represent communities for statistical reporting (e.g., census and ERP).

Suburbs and Localities (SAL) represent commonly-used suburb/locality names (postal-style areas) and may use different geographic boundaries. For comprehensive analysis, consider reviewing both boundary types if available.

0 People

est. as @ -- *

ABS ERP | -- people | --

2021 Census | -- people

Land Area
--
Land Area
Population Density
--
Density
Unemployment Rate
--
Unemployment
Development
--
Resi Approvals
Get My Report

Sales Activity

Table Chart PROFILE FAQ

Curious about local property values? Filter the chart to assess the volume and appreciation (including resales) trends and regional comparisons, or scroll to the map below view this information at an individual property level.

House icon
Median Price
$0
Key icon
1yr Sales Volume
0
Find a Recent Sale
Type Specified (1) | Limit 50

Sales Detail

Population

Table Chart PROFILE FAQ

Wagga Wagga - East is positioned among the lower quartile of areas assessed nationally for population growth based on AreaSearch's assessment of recent, and medium term trends

Based on AreaSearch's analysis, Wagga Wagga - East's population is around 17,214 as of Feb 2026. This reflects an increase of 293 people (1.7%) since the 2021 Census, which reported a population of 16,921 people. The change is inferred from the estimated resident population of 16,931 from the ABS as of June 2024 and an additional 229 validated new addresses since the Census date. This population level equates to a density ratio of 318 persons per square kilometer, providing significant space per person and potential room for further development. Wagga Wagga - East's 1.7% growth since the census positions it within 2.5 percentage points of the SA3 area (4.2%), demonstrating competitive growth fundamentals. Population growth for the area was primarily driven by natural growth, which contributed approximately 54.8% of overall population gains during recent periods.

AreaSearch adopts ABS/Geoscience Australia projections for each SA2 area, as released in 2024 with 2022 as the base year. For any SA2 areas not covered by this data, AreaSearch utilises the NSW State Government's SA2 level projections, as released in 2022 with 2021 as the base year. Growth rates by age group from these aggregations are also applied to all areas for years 2032 to 2041. Considering the projected demographic shifts, projections indicate a decline in overall population, with the area's population expected to contract by 1,123 persons by 2041 according to this methodology. However, growth across specific age cohorts is anticipated, led by the 85 and over age group, which is projected to grow by 476 people. See the age section for more details.

Frequently Asked Questions - Population

What is the latest population estimate for the Wagga Wagga - East SA2?
Total population for the Wagga Wagga - East SA2 was estimated to be approximately 17,214 as at Feb 26. This is based upon an estimated resident population of 16,931 from the ABS up to June 2024.
How has the population in the Wagga Wagga - East SA2 changed since 2021?
The wagga wagga - east sa2 has added approximately 293 people and shown a 1.73% increase from the 16,921 people recorded at the 2021 Census period.
What is the population density in the Wagga Wagga - East SA2?
The population density in the Wagga Wagga - East SA2 is estimated at 318 persons per square kilometer based on the latest population estimate.
How much has the population grown over the past 10 years in the Wagga Wagga - East SA2?
Over the past 10 years, the population in the Wagga Wagga - East SA2 has shown a compound annual growth rate of 0.1% per annum.
What are the main drivers of population growth in the Wagga Wagga - East SA2?
Population growth in the Wagga Wagga - East SA2 is driven by: Natural increase (54.8%), Overseas migration (45.2%), Interstate migration (0.0%). The primary driver is Natural increase, contributing 54.8% of overall population gains.

Development

Table Chart PROFILE FAQ

Residential development activity is lower than average in Wagga Wagga - East according to AreaSearch's national comparison of local real estate markets

Wagga Wagga - East has averaged around 53 new dwelling approvals each year, with 265 homes approved over the past 5 financial years (between FY-21 and FY-25) and 46 so far in FY-26. As the area has experienced population decline, development activity has been adequate in relative terms, which is a positive for buyers, while new dwellings are developed at an average construction cost of $435,000—somewhat higher than regional norms—reflecting quality-focused development. There have also been $17.5 million in commercial approvals this financial year, indicating steady commercial investment activity.

Relative to the Rest of NSW, Wagga Wagga - East records about 63% of the building activity per person and ranks in the 54th percentile of areas assessed nationally. This is below the national average, indicating the area's established nature and suggesting potential planning limitations. New building activity consists of 88.0% standalone homes and 12.0% medium and high-density housing, maintaining the area's traditional low-density character with a focus on family homes appealing to those seeking space. The location has approximately 297 people per dwelling approval, indicating a low-density market.

With the population expected to remain stable or decline, Wagga Wagga - East should see reduced pressure on housing, potentially creating opportunities for buyers.

Frequently Asked Questions - Development

How many dwelling approvals have occurred in the Wagga Wagga - East SA2 recently?
Dwelling approval activity in the the Wagga Wagga - East SA2 area has seen 117 residential approvals over the past two financial years, based on AreaSearch's SA2 aggregation method. The Wagga Wagga - East SA2's current population of 17,214 has been supported by 53 approvals on average over recent years.
How does the Wagga Wagga - East SA2's development activity compare to the broader region?
The Wagga Wagga - East SA2 has seen 0.31 approvals per 100 people in recent years, compared to 0.58 approvals in the broader region. This means that one dwelling has been approved for every 297 people in the Wagga Wagga - East SA2, compared to one for every 190 in the broader region.
Is the Wagga Wagga - East SA2 keeping up with housing demand?
Population forecasts suggest stable or declining population, reducing pressure on housing supply in the the Wagga Wagga - East SA2 area.
What has been the trend in development approvals over the past five years in the Wagga Wagga - East SA2?
Looking at development activity over the past five years, the Wagga Wagga - East SA2's approval levels have been significantly above the yearly average of 53, indicating strong recent growth in development activity.
How does recent development compare to population growth in the Wagga Wagga - East SA2?
Over the past five years, the population in the Wagga Wagga - East SA2 has grown by approximately 1,629 people, while 265 residential approvals were recorded. This equates to a ratio of 6.1 people added for each new dwelling approval. This high ratio suggests strong population growth relative to housing supply, potentially indicating unmet housing demand.
Are there opportunities for residential developers in the Wagga Wagga - East SA2?
With dwelling approval activity running at an average of 53 approvals per year and a population of 17,214, stable population forecasts suggest a mature market with selective development opportunities.

Infrastructure

PROFILE FAQ

Wagga Wagga - East has strong levels of nearby infrastructure activity, ranking in the top 40% nationally

Nothing can influence an area's performance as much as changes to local infrastructure, major projects, and planning initiatives. In total 39 projects have been identified by AreaSearch that are likely to have an impact on the area. Key projects include the Riverina Intermodal Freight and Logistics (RiFL) Hub, Lake Albert Manors, Bourkelands Neighbourhood Shopping Centre, and Lake Albert Pipeline and Precinct Renewal, with the list below detailing those likely to be of most relevance.

Professional plan users can use the search below to filter and access additional projects.

INFRASTRUCTURE SEARCH
All Selected

AI Generated Denotes AI-based impression for illustrative purposes only, not to be taken as definitive under any circumstances. Please follow links and conduct other investigations from the project's source for actual imagery. Developers and project owners wishing us to use original imagery please Contact Us and we will do so.

Frequently Asked Questions - Infrastructure

What are some of the major infrastructure and planning changes likely to influence the Wagga Wagga - East SA2?
Key infrastructure and planning changes likely to influence the Wagga Wagga - East SA2 include: Riverina Intermodal Freight and Logistics (RiFL) Hub (Construction); Lake Albert Manors (Construction); Bourkelands Neighbourhood Shopping Centre (Dev. Approval); Lake Albert Pipeline and Precinct Renewal (Construction); and Lake Albert Plan of Management 2025-2035 (Approved). These projects represent significant developments that will shape the area's future infrastructure landscape.
What types of infrastructure projects are impacting the Wagga Wagga - East SA2?
Infrastructure development impacting the Wagga Wagga - East SA2 spans multiple sectors including Transport & Logistics, Communities, Precincts & Urban Renewal, and Retail, among others.
What is the scale of infrastructure investment impacting the Wagga Wagga - East SA2?
Infrastructure investment analysis indicates substantial capital deployment exceeding $4.5 billion in projects that will impact the extended area, with a notable concentration of investment within the immediate the Wagga Wagga - East SA2 vicinity.
How does the Wagga Wagga - East SA2's infrastructure development compare to other areas?
With an infrastructure score in the top 40%, the Wagga Wagga - East SA2 demonstrates above-average development activity compared to national benchmarks.
Wagga Wagga Health Service Redevelopment Stage 3
Category: Health & Medical
Stage: Completed | Est. Comp: 2021
Source / Links: Link 1   Link 2  

Stage 3 of the Wagga Wagga Health Service Redevelopment featured the construction of a new six-storey ambulatory care building, known as the Health Services Hub. The facility consolidated sub-acute, ambulatory, community, and primary health services into a single site. Key features include 28 aged care beds, 24 rehabilitation beds, a 24-bed mental health inpatient unit, a 20-chair renal dialysis unit, an oral health clinic, and a dedicated education area with a library and lecture theatre. The project also included the relocation of BreastScreen NSW to the city centre and the completion of a multi-storey car park in 2023.

Health & Medical

Rowan Village
Category: Communities, Precincts & Urban Renewal
Stage: Planning | Est. Comp: 2037
Source / Links: Link 1   Link 2  

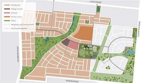
Rowan Village is a $2.5 billion master-planned community spanning 220 hectares within Wagga Wagga's Southern Growth Area. The development is set to deliver approximately 2,100 homes, featuring a diverse mix of housing types including detached dwellings, terraces, and a dedicated seniors' living component in partnership with Ingenia. Key features include a central Village Centre with a supermarket, medical centre, and childcare, along with a new primary school, a 1,500sqm multipurpose community hub, and over 10km of shared cycleways. The project emphasizes environmental sustainability through the restoration of riparian corridors and 85 hectares of open space. Development is structured across 20 stages, with construction forecast to commence in 2027 following expected rezoning and approvals in mid-2026.

Communities, Precincts & Urban Renewal

Bourkelands Neighbourhood Shopping Centre
Category: Retail
Stage: Dev. Approval | Est. Comp: N/A
Source / Links: Link 1   Link 2  

Approved neighbourhood shopping centre designed to feature a FoodWorks-anchored supermarket and five specialty retail shops. The development includes approximately 73 parking spaces and is situated on the corner of Bourkelands Drive and Bourke Street. Despite gaining approval from the Wagga Wagga Interim Joint Planning Panel in June 2011, the project has faced significant delays. Recent local planning updates for 2025-2026 indicate the site remains undeveloped and zoned for future retail use, while surrounding infrastructure like the Plumpton Road duplication project is progressing nearby.

Retail

Southern Growth Area
Category: Communities, Precincts & Urban Renewal
Stage: Planning | Est. Comp: 2041
Source / Links: Link 1   Link 2  

An 844.8ha urban growth precinct south of Wagga Wagga, divided into four zones to accommodate long-term housing needs. Zone 1 (341.6ha, comprising Rowan Village and Sunnyside) is currently under active rezoning (Planning Proposal LEP24/0003, on public exhibition until December 2025) for approximately 2,900 dwellings plus supporting infrastructure, commercial areas, and open space. Zones 2-4 are in early strategic planning. The precinct addresses regional housing shortages and is proponent-led in Zone 1 by private developers in partnership with Wagga Wagga City Council.

Communities, Precincts & Urban Renewal

Riverina Intermodal Freight and Logistics (RiFL) Hub
Category: Transport & Logistics
Stage: Construction | Est. Comp: 2026
Source / Links: Link 1   Link 2  

Multi-million dollar intermodal freight and logistics hub at Bomen in Wagga Wagga (45km from Griffith) featuring a 4.6 kilometre rail master siding connecting to the main southern railway and intermodal terminal. Part of the Wagga Wagga Special Activation Precinct with over $137 million NSW Government investment. Major freight terminal development connecting road and rail networks to support agricultural exports and regional freight distribution with container handling facilities and logistics warehouses.

Transport & Logistics

Wagga Wagga Special Activation Precinct
Category: Communities, Precincts & Urban Renewal
Stage: Construction | Est. Comp: 2027
Source / Links: Link 1   Link 2  

NSW Government's $212 million investment in the 4,500 hectare Wagga Wagga Special Activation Precinct focusing on high value agriculture, manufacturing, freight and logistics, renewable energy and recycling industries. Features master planning, enabling infrastructure, accelerated planning pathways and business concierge services. Creation of a dedicated agribusiness and food processing hub including upgraded rail infrastructure, new road network, industrial land development, water and sewer infrastructure. The precinct will create up to 6,000 new jobs across a range of industries. Major $137 million Special Activation Precinct covering 4,500 hectares including industrial land, freight rail links, digital connectivity and streamlined planning. Expected to create 6,000 jobs and includes specialized manufacturing and logistics hub with advanced manufacturing facilities, renewable energy integration, research and development spaces, and supporting commercial areas. The precinct includes the Riverina Intermodal Freight and Logistics Hub (RiFL) and focuses on advanced manufacturing, agribusiness, and freight logistics with fast-tracked planning approvals.

Communities, Precincts & Urban Renewal

Lake Albert Pipeline and Precinct Renewal
Category: Environmental & Disaster Management
Stage: Construction | Est. Comp: 2025
Source / Links: Link 1   Link 2  

Major $9 million project including pipeline from Murrumbidgee River to Lake Albert, 2.78km embankment stabilisation, stormwater outlet rehabilitation, foreshore remediation works, and weir upgrade works to improve water quality and maintain consistent water levels.

Environmental & Disaster Management

Lake Albert Plan of Management 2025-2035
Category: Communities, Precincts & Urban Renewal
Stage: Approved | Est. Comp: 2035
Source / Links: Link 1   Link 2  

A 10-year plan adopted by Wagga Wagga City Council to guide the management, use and future development of the Lake Albert precinct (including Crown Land and Council land). The plan sets a strategic framework for amenity improvements, recreation, Aboriginal cultural values, biodiversity and water quality, with implementation via future investigations, business cases and funding programs.

Communities, Precincts & Urban Renewal

Employment

Table Chart PROFILE FAQ

AreaSearch analysis indicates Wagga Wagga - East maintains employment conditions that align with national benchmarks

Wagga Wagga - East possesses a skilled workforce, with essential services sectors well represented, and an unemployment rate of only 3.1%. As of December 2025, 8,194 residents are in work while the unemployment rate is 0.9% below Regional NSW's rate of 3.9%, and workforce participation is broadly similar to Regional NSW's 61.3%. Based on Census responses, a low 9.0% of residents were found to work from home, though Covid-19 lockdown impacts should be considered.

Leading employment industries among residents comprise health care & social assistance, education & training, and construction. The area demonstrates a particularly notable concentration in education & training, with employment levels at 1.3 times the regional average. In contrast, agriculture, forestry & fishing employs just 2.4% of local workers, below Regional NSW's 5.3%. While local employment opportunities exist in the area, it appears many residents commute elsewhere for work, based on the count of Census working population to local population.

Based on AreaSearch analysis of SALM and ABS data, during the year to December 2025, the labour force decreased by 3.1% alongside a 3.4% employment decline, causing the unemployment rate to rise by 0.3 percentage points. This contrasts with Regional NSW, where employment contracted by 1.2%, the labour force fell by 0.8%, and unemployment rose 0.4 percentage points. Jobs and Skills Australia's national employment forecasts from May-25 can offer further insight into potential future demand within Wagga Wagga - East. These projections, covering five and ten-year periods, have been mapped against the local employment profile to estimate growth patterns. While national employment is forecast to expand by 6.6% over five years and 13.7% over ten years, growth rates differ significantly between industry sectors. Applying these industry-specific projections to Wagga Wagga - East's employment mix suggests local employment should increase by 6.6% over five years and 13.7% over ten years (please note this is a simple weighting extrapolation for illustrative purposes and does not take into account localised population projections).

Frequently Asked Questions - Employment

What is the employment situation in the Wagga Wagga - East SA2?
As of December 2025, the Wagga Wagga - East SA2 has approximately 8,194 employed residents with an unemployment rate of 3.1%. This healthy unemployment rate suggests a well-functioning labour market. Employment performance is above the national median, showing positive labour market dynamics.
How does the Wagga Wagga - East SA2's unemployment rate compare to the broader region?
As of December 2025, the unemployment rate in the Wagga Wagga - East SA2 stands at 3.1%, which is 0.9 percentage points below Regional NSW's rate of 3.9%. This lower unemployment rate suggests stronger local employment conditions. For comparison, the national unemployment rate is 4.2%.
What are the major employment sectors in the Wagga Wagga - East SA2?
The employment landscape in the Wagga Wagga - East SA2 is dominated by several key sectors. The largest employers are health care & social assistance (19.0% of employment), education & training (12.5%), and construction (10.2%). Other significant employers include retail trade and public administration & safety.
How has employment changed recently in the Wagga Wagga - East SA2?
Over the past year to December 2025, the Wagga Wagga - East SA2 has experienced a decline in employment, with total jobs decreasing while the labour force decreased. As a result, the unemployment rate has rise. By comparison, Regional NSW saw employment decreased and its unemployment rate rose.
What is the workforce participation rate in the Wagga Wagga - East SA2?
The workforce participation rate in the Wagga Wagga - East SA2 is 62.0%, which represents the proportion of working-age residents who are either employed or actively seeking work. This healthy participation rate reflects good employment opportunities and workforce engagement. The local rate leading the Regional NSW average of 61.3%, showing similar workforce dynamics to the broader region.
Which industries are over-represented in the Wagga Wagga - East SA2's employment market?
The wagga wagga - east sa2 shows notable specialization in education & training, which employs 12.5% of the local workforce compared to 9.6% regionally. This moderate specialization indicates some local strength in the sector. The area also shows above-average employment in 1 other sectors, contributing to a distinctive economic profile.
What are the employment growth prospects for the Wagga Wagga - East SA2?
Based on Jobs and Skills Australia projections applied to the Wagga Wagga - East SA2's industry mix, employment is expected to grow by 6.6% over the next five years and 13.7% over ten years. This compares to national growth expectations of 6.6% over five years. Steady growth is anticipated across multiple sectors, providing diverse employment opportunities.
How does the job market in the Wagga Wagga - East SA2 compare nationally?
The wagga wagga - east sa2's employment market shows above-average performance nationally, placing in the top half of areas assessed. Employment indicators suggest healthy labour market conditions relative to other regions. Recent job advertisement trends show the broader employment region saw a 1.0% decline, ranking 19.0th out of 37 regions nationally.
What employment opportunities exist for skilled workers in the Wagga Wagga - East SA2?
Skilled workers will find good opportunities in the Wagga Wagga - East SA2, with skilled sectors accounting for 38.9% of employment. Key sectors for skilled workers include health care & social assistance (19.0%), education & training (12.5%), and professional & technical (4.6%). With projected employment growth of 6.6% over five years, demand for skilled workers is expected to remain strong.

Income

Table Chart PROFILE FAQ

Income levels align closely with national averages, indicating typical economic conditions for Australian communities according to AreaSearch analysis

AreaSearch's latest postcode level ATO data for FY-23 reveals that income in the Wagga Wagga - East SA2 is just above the national average, with the median assessed at $56,619 while the average income stands at $68,538. This contrasts with Regional NSW's figures of a median income of $52,390 and an average income of $65,215. Based on Wage Price Index growth of 8.86% since FY-23, current estimates would be approximately $61,635 (median) and $74,610 (average) as of September 2025. From the 2021 Census, household, family and personal incomes in Wagga Wagga - East cluster around the 53rd percentile nationally. Income analysis reveals the predominant cohort spans 33.2% of locals (5,715 people) in the $1,500 - 2,999 category, aligning with the surrounding region where this cohort likewise represents 29.9%. After housing costs, residents retain 87.7% of income, reflecting strong purchasing power, and the area's SEIFA income ranking places it in the 5th decile.

Frequently Asked Questions - Income

What is the median taxable income in the Wagga Wagga - East SA2?
Based on Wage Price Index adjustments to September 2025, the estimated median taxable income in the Wagga Wagga - East SA2 is approximately $61,635. The official ATO data from FY-23 recorded a median of $56,619.
What is the average taxable income in the Wagga Wagga - East SA2?
Based on Wage Price Index adjustments to September 2025, the estimated average taxable income in the Wagga Wagga - East SA2 is approximately $74,610. The official ATO data from FY-23 recorded an average of $68,538.
How does the median taxable income in the Wagga Wagga - East SA2 compare to the region?
Based on Wage Price Index adjustments to September 2025, the estimated median taxable income in the Wagga Wagga - East SA2 is approximately $61,635 compared to $57,032 in Regional NSW. The official ATO data from FY-23 shows $56,619 and $52,390 respectively.
How does the average taxable income in the Wagga Wagga - East SA2 compare to the region?
Based on Wage Price Index adjustments to September 2025, the estimated average taxable income in the Wagga Wagga - East SA2 is approximately $74,610 compared to $70,993 in Regional NSW. The official ATO data from FY-23 shows $68,538 and $65,215 respectively.
What are the main income cohorts in the Wagga Wagga - East SA2 according to the 2021 Census?
As per the 2021 Census, the income bracket containing the largest proportion (~33.2% / 5,715 persons) of the Wagga Wagga - East SA2's population is the $1,500 - 2,999 cohort.
How do the main income cohorts in the Wagga Wagga - East SA2 compare to the region?
The largest income cohort in the Wagga Wagga - East SA2 is the $1,500 - 2,999 group, representing about 33.2% of the population. In comparison, Regional NSW's largest income cohort is the $1,500 - 2,999 group, representing 29.9% of its population, according to the 2021 Census.
What is the median household income in the Wagga Wagga - East SA2 according to the 2021 Census?
The 2021 Census data indicates that the median household income in the Wagga Wagga - East SA2 is $1,699/wk.
What is the median family income in the Wagga Wagga - East SA2 according to the 2021 Census?
According to the 2021 Census, the median family income in the Wagga Wagga - East SA2 is $2,088/wk.
What is the median personal income in the Wagga Wagga - East SA2 according to the 2021 Census?
The 2021 Census shows that the median personal income in the Wagga Wagga - East SA2 is $851/wk.
How does the Wagga Wagga - East SA2's income rank nationally?
The Wagga Wagga - East SA2 shows a median taxpayer income of $56,619 and an average of $68,538 according to the latest postcode level ATO data aggregated by AreaSearch for FY-23. This is slightly above average nationally, contrasting with Regional NSW's median income of $52,390 and average income of $65,215. Based on Wage Price Index growth of 8.86% since FY-23, current estimates would be approximately $61,635 (median) and $74,610 (average) as of September 2025.
What is the disposable income in the Wagga Wagga - East SA2?
The estimated disposable income in the Wagga Wagga - East SA2 is $6,454 per year according to AreaSearch analysis.
How does the Wagga Wagga - East SA2's disposable income compare to the region?
The wagga wagga - east sa2's disposable income is $6,454 compared to $5,252 for Regional NSW, based on AreaSearch analysis.

Housing

Table Chart PROFILE FAQ

Wagga Wagga - East is characterized by a predominantly suburban housing profile, with ownership patterns similar to the broader region

Dwelling structure within Wagga Wagga - East, as evaluated at the latest Census, comprised 88.0% houses and 12.0% other dwellings (semi-detached, apartments, 'other' dwellings), in comparison to Regional NSW's 82.6% houses and 17.4% other dwellings. Meanwhile, the level of home ownership within Wagga Wagga - East slightly lagged that of Regional NSW, at 36.3%, with the remainder of dwellings either mortgaged (36.9%) or rented (26.8%). The median monthly mortgage repayment in the area was well below the Regional NSW average at $1,517, while the median weekly rent figure was recorded at $300, compared to Regional NSW's $1,733 and $330. Nationally, Wagga Wagga - East's mortgage repayments are significantly lower than the Australian average of $1,863, while rents are substantially below the national figure of $375.

Frequently Asked Questions - Housing

What percentage of homes are owned vs rented in the Wagga Wagga - East SA2?
In the Wagga Wagga - East SA2, 36.3% of homes are owned outright, 36.9% are owned with a mortgage, and 26.8% are rented.
What percentage of dwellings in the Wagga Wagga - East SA2 are houses?
According to the latest data, 88.0% of dwellings in the Wagga Wagga - East SA2 are houses.
What percentage of dwellings in the Wagga Wagga - East SA2 are apartments or units?
In the Wagga Wagga - East SA2, 11.2% of dwellings are apartments or units, with an additional 0.6% being semi-detached dwellings.
What is the level of outright home ownership in the Wagga Wagga - East SA2?
Outright home ownership in the Wagga Wagga - East SA2 stands at 36.3%, compared to 39.6% in Regional NSW.
What is the median monthly mortgage repayment in the Wagga Wagga - East SA2?
The median monthly mortgage repayment in the Wagga Wagga - East SA2 is $1,517, compared to $1,733 in Regional NSW.
What is the median weekly rent in the Wagga Wagga - East SA2?
The median weekly rent in the Wagga Wagga - East SA2 is $300, compared to $330 in Regional NSW.
What is the distribution of rental prices in the Wagga Wagga - East SA2?
In the Wagga Wagga - East SA2, 4.3% of rentals are $0-149/week, 63.6% are $150-349/week, 31.6% are $350-649/week, 0.3% are $650-949/week, and 0.3% are $950+/week.
What is the average monthly housing cost in the Wagga Wagga - East SA2?
The aggregate monthly housing cost in the Wagga Wagga - East SA2 is $908, which represents the average monthly cost across all housing types.
What percentage of income do residents spend on housing in the Wagga Wagga - East SA2?
In the Wagga Wagga - East SA2, households with mortgages typically spend 20.6% of their income on mortgage repayments, while renters spend 17.7% of their income on rent.
How crowded are homes in the Wagga Wagga - East SA2?
The average persons per bedroom ratio in the Wagga Wagga - East SA2 is 0.7, indicating the level of household density.
How does housing affordability in the Wagga Wagga - East SA2 compare to the region?
Housing affordability in the Wagga Wagga - East SA2 shows mortgage holders spending 20.6% of income on repayments (vs 27.9% regionally), while renters spend 17.7% of income on rent (vs 23.0% regionally).
What types of dwellings are most common in the Wagga Wagga - East SA2?
The dwelling mix in the Wagga Wagga - East SA2 consists of 88.0% detached houses, 0.6% semi-detached dwellings, 11.2% apartments, and 0.2% other dwelling types.
What is the weighted average housing cost based on tenure mix in the Wagga Wagga - East SA2?
Considering the housing occupancy patterns, the weighted average monthly housing cost is approximately $908. This accounts for outright owners paying no housing costs, mortgage holders paying $1,517/month, and renters paying $1,299/month.
How affordable is housing in the Wagga Wagga - East SA2 relative to local incomes?
Housing in Wagga Wagga - East consumes approximately 12.3% of median household income ($7,357 monthly), indicating costs are highly affordable. The generally accepted benchmark is that housing should not exceed 30% of household income.
How do proposed developments compare to existing housing types in the Wagga Wagga - East SA2?
Recent development applications in Wagga Wagga - East show attached dwellings contributing 8% of approvals compared to 12% of existing stock, while detached houses represent 92% of applications versus 88% of current dwellings. This suggests development patterns consistent with existing housing mix. Density increases remain below national trends.

Household Composition

Table Chart PROFILE FAQ

Wagga Wagga - East has a typical household mix, with a higher-than-average median household size

Family households dominate at 72.1% of all households, comprising 30.7% couples with children, 28.4% couples without children, and 12.0% single parent families. Non-family households make up the remaining 27.9%, with lone person households at 25.2% and group households comprising 2.8% of the total. The median household size of 2.6 people is larger than the Regional NSW average of 2.4.

Frequently Asked Questions - Households

How many households are in the Wagga Wagga - East SA2?
As of the 2021 Census, the Wagga Wagga - East SA2 had 6,309 households. Based on population growth patterns, this has grown by approximately 1.7% to an estimated 6,418 households today.
What is the typical household size?
The median household size in the Wagga Wagga - East SA2 is 2.6 people. This compares to 2.4 in Regional NSW and reflects the area's household composition mix.
What types of households are most common?
Family households dominate at 72.1% of all households. The remaining households consist of lone person households (25.2%), group households (2.8%), and other household types (0.0%).
How are families structured in the area?
Among the 4,548 family households, 30.7% are couples with children, 28.4% are couples without children at home, and 12.0% are single parent families. This mix shapes local demand for schools, family services, and housing types.
How does the Wagga Wagga - East SA2 compare to regional household patterns?
Compared to Regional NSW, the Wagga Wagga - East SA2 shows distinct household patterns. This family-oriented profile influences local demand for family homes, schools, and children's services.
What is the average family size?
Families in the Wagga Wagga - East SA2 have an average of 1.9 children, slightly above the Regional NSW average of 1.8. This influences local demand for child-related services and larger family homes.
What are the marriage patterns in the Wagga Wagga - East SA2?
Marriage patterns reveal 50.1% of the adult population are currently married, while 33.1% have never married. This compares to 45.6% married and 34.3% never married across Regional NSW.
How significant are single-person households?
Single-person households represent 25.2% of all households in the Wagga Wagga - East SA2, similar to the regional average of 27.9%. This affects demand for smaller dwellings and single-person accommodation.
Are shared living arrangements common?
Group households (unrelated people sharing) account for 2.8% of households, well below the Regional NSW average of 3.3%. This low rate suggests limited student or young professional shared accommodation.
Loading household composition data...

Local Schools & Education

Table Chart PROFILE FAQ

Educational attainment in Wagga Wagga - East aligns closely with national averages, showing typical qualification patterns and performance metrics

Educational qualifications in Wagga Wagga - East trail regional benchmarks, with 22.9% of residents aged 15+ holding university degrees compared to 32.2% in NSW. This gap highlights potential for educational development and skills enhancement. Bachelor degrees lead at 15.6%, followed by postgraduate qualifications (4.5%) and graduate diplomas (2.8%). Trade and technical skills feature prominently, with 38.7% of residents aged 15+ holding vocational credentials, including advanced diplomas (10.3%) and certificates (28.4%).

Educational participation is notably high, with 30.3% of residents currently enrolled in formal education. This includes 11.3% in primary education, 8.9% in secondary education, and 3.6% pursuing tertiary education.

Frequently Asked Questions - Education

What percentage of people in the Wagga Wagga - East SA2 have university qualifications?
22.9% of people aged 15 and over in the Wagga Wagga - East SA2 have university qualifications, compared to 21.3% in the broader region.
What percentage of people in the Wagga Wagga - East SA2 have no formal qualifications?
38.4% of people aged 15 and over in the Wagga Wagga - East SA2 have no formal qualifications, compared to 39.1% regionally.
How does the Wagga Wagga - East SA2's education level compare to national averages?
The wagga wagga - east sa2 ranks in the 52th percentile nationally for education based on AreaSearch's analysis of qualification and performance metrics.
What types of qualifications are most common in the Wagga Wagga - East SA2?
The most common qualifications in the Wagga Wagga - East SA2 are: Certificate (28.4%), Bachelor Degree (15.6%), Advanced Diploma (10.3%).
What proportion of the Wagga Wagga - East SA2's population is currently attending educational institutions?
30.3% of the population in the Wagga Wagga - East SA2 is currently engaged in formal education, with 11.3% in primary school, 8.9% in secondary school, 3.6% at university.
What is the ICSEA score for schools in the Wagga Wagga - East SA2?
The average ICSEA (Index of Community Socio-Educational Advantage) score for schools in the Wagga Wagga - East SA2 is 1016, indicating average socio-educational advantage (national average is 1000).
How many schools are located within the Wagga Wagga - East SA2?
There are 10 schools within the Wagga Wagga - East SA2, with a combined enrollment of approximately 4,300 students.
What types of schools are available in the Wagga Wagga - East SA2?
The wagga wagga - east sa2 includes 7 primary schools, 2 secondary schools, 1 combined school.

Schools Detail

Nearby Services & Amenities

PROFILE FAQ

Transport

Table Chart PROFILE FAQ

Transport servicing is moderate compared to other areas nationally based on assessment of service frequency, route connectivity and accessibility

Public transport analysis reveals 114 active transport stops operating within Wagga Wagga - East, comprising a mix of buses. These stops are serviced by 94 individual routes, collectively providing 2,534 weekly passenger trips. Transport accessibility is rated as good, with residents typically located 272 meters from the nearest transport stop. As a primarily residential area, most residents commute outward; the car remains the dominant mode at 95%. Vehicle ownership averages 1.6 per dwelling. A relatively low 9.0% of residents work from home (2021 Census; may reflect COVID-19 conditions).

Service frequency averages 362 trips per day across all routes, equating to approximately 22 weekly trips per individual stop. The accompanying map shows the 100 nearest stops to the location centrepoint.

Frequently Asked Questions - Transport

How many public transport stops are in Wagga Wagga - East?
There are 114 public transport stops within the Wagga Wagga - East SA2.
How frequent are the transport services in Wagga Wagga - East?
the Wagga Wagga - East SA2 has 2,534 weekly trips across 94 routes, averaging 362 trips per day.
How far are residents from public transport in Wagga Wagga - East?
On average, residential properties are 272 meters from the nearest transport stop.

Transport Stops Detail

Health

Table Chart PROFILE FAQ

Wagga Wagga - East's residents are healthier than average in comparison to broader Australia with prevalence of common health conditions quite low among the general population though higher than the nation's average across older, at risk cohorts

Health data indicates relatively positive outcomes for Wagga Wagga - East residents. AreaSearch's analysis of mortality rates and health conditions shows results broadly in line with national benchmarks. The prevalence of common health conditions is quite low among the general population, though higher than the national average across older, at-risk cohorts. The rate of private health cover slightly leads the average SA2 area at approximately 53% of the total population (~9,175 people).

The most common medical conditions in the area are asthma and mental health issues, impacting 10.0% and 8.9% of residents, respectively. Meanwhile, 64.8% of residents declared themselves completely clear of medical ailments compared to 63.3% across Regional NSW. Working-age residents show an above-average prevalence of chronic health conditions. The area has 21.0% of residents aged 65 and over (3,616 people), which is lower than the 23.4% in Regional NSW. Health outcomes among seniors present some challenges, though they rank lower nationally than the broader population.

Frequently Asked Questions - Health

How many people in the Wagga Wagga - East SA2 have private health insurance?
Around 53.3% of people in the Wagga Wagga - East SA2 are covered by private health insurance, which compares to 51.9% in the broader region of Regional NSW.
What percentage of the population requires ongoing medical assistance in the Wagga Wagga - East SA2?
In the Wagga Wagga - East SA2, 5.9% of the population is identified as requiring ongoing medical assistance. This figure is slightly different from the regional average, where 6.8% of people in Regional NSW require similar assistance.
How prevalent is asthma in the Wagga Wagga - East SA2?
10.0% of people in the Wagga Wagga - East SA2 are diagnosed with asthma. In comparison, 8.4% of the population across Regional NSW is affected by asthma.
What percentage of people have diabetes in the Wagga Wagga - East SA2?
Diabetes affects 4.5% of the the Wagga Wagga - East SA2 population, while in the surrounding region, 4.7% of people are diagnosed with diabetes.
What is the percentage of people with heart disease in the Wagga Wagga - East SA2?
3.8% of people in the Wagga Wagga - East SA2 have heart disease. Across the region of Regional NSW, 4.4% of the population is affected by heart disease.
How does the Wagga Wagga - East SA2 compare to the region in terms of overall private health coverage?
In the Wagga Wagga - East SA2, 53.3% of the population are estimated to have private health insurance. Comparatively, Regional NSW sees an estimated private health coverage rate of 51.9%.

Cultural Diversity

Table Chart PROFILE FAQ

Wagga Wagga - East is considerably less culturally diverse than average when assessed alongside AreaSearch's national rankings for language and cultural background related metrics

Wagga Wagga - East was found to be below average in terms of cultural diversity, with 91.1% of its population being citizens, 89.6% born in Australia, and 92.7% speaking English only at home. The main religion in Wagga Wagga - East is Christianity, which makes up 64.0% of the population. This compares to 55.9% across Regional NSW.

In terms of ancestry (country of birth of parents), the top three represented groups in Wagga Wagga - East are Australian, comprising 30.5% of the population, English, comprising 30.0% of the population, and Irish, comprising 10.1% of the population. Additionally, there are notable divergences in the representation of certain other ethnic groups: Australian Aboriginal is notably overrepresented at 4.0% of Wagga Wagga - East (vs 4.6% regionally), Scottish at 8.4% (vs 8.0%) and German at 3.8% (vs 3.1%).

Frequently Asked Questions - Diversity

What is the level of cultural diversity in the Wagga Wagga - East SA2?
Wagga Wagga - East was found to be below average in terms of cultural diversity, with 91.1% of its population being citizens, 89.6% born in Australia, and 92.7% speaking English only at home.
What is the most common religion in the Wagga Wagga - East SA2?
The main religion in Wagga Wagga - East was found to be Christianity, which makes up 64.0% of people in Wagga Wagga - East. This compares to 55.9% across Regional NSW.
What are the top countries of origin in the Wagga Wagga - East SA2?
In terms of ancestry (country of birth of parents), the top three represented groups in Wagga Wagga - East are Australian, comprising 30.5% of the population, English, comprising 30.0% of the population, and Irish, comprising 10.1% of the population. Additionally, there are notable divergences in the representation of certain other ethnic groups: Australian Aboriginal is notably overrepresented at 4.0% of Wagga Wagga - East (vs 4.6% regionally), Scottish at 8.4% (vs 8.0%) and German at 3.8% (vs 3.1%).
How does the percentage of people born overseas compare to the regional average?
10.4% of the the Wagga Wagga - East SA2 population was born overseas, compared to 13.0% regionally.
What percentage of the the Wagga Wagga - East SA2 population speaks a language other than English at home?
7.3% of the population in the Wagga Wagga - East SA2 speaks a language other than English at home, compared to 7.1% in the wider region.
How many people in the Wagga Wagga - East SA2 identify as Australian Aboriginal?
4.0% of the the Wagga Wagga - East SA2 population identifies as Australian Aboriginal, compared to 4.6% in the region.
What is the citizenship status of the population in the Wagga Wagga - East SA2?
91.1% of the the Wagga Wagga - East SA2 population holds citizenship, compared to 89.2% in the wider region.

Age

Table Chart PROFILE FAQ

Wagga Wagga - East's population is slightly younger than the national pattern

With a median age of 38, Wagga Wagga - East is notably under the Regional NSW figure of 43 but is equivalent to the national norm of 38. The 25 - 34 age group shows strong representation at 13.6% compared to Regional NSW, whereas the 55 - 64 cohort is less prevalent at 10.4%. Following the 2021 Census, the 25 to 34 age group has grown from 11.9% to 13.6% of the population, while the 75 to 84 cohort increased from 6.4% to 7.5%. Conversely, the 5 to 14 cohort has declined from 14.8% to 13.0% and the 45 to 54 group dropped from 11.7% to 10.2%. Demographic modeling suggests Wagga Wagga - East's age profile will evolve significantly by 2041. Leading the demographic shift, the 85+ group will grow by 85% (416 people), reaching 907 from 490. The aging population dynamic is clear, with those 65+ comprising 100% of projected growth. Meanwhile, the 25 to 34 and 65 to 74 cohorts are expected to experience population declines.

Frequently Asked Questions - Age

What is the median age in the Wagga Wagga - East SA2?
According to the latest data, the median age in the Wagga Wagga - East SA2 is 38 years.
How does the Wagga Wagga - East SA2's median age compare to broader areas?
At 38 years, Wagga Wagga - East is 5 years younger than the Regional NSW average (43 years) and equal to the national average.
What age groups are over-represented in the Wagga Wagga - East SA2?
The most over-represented age group in the Wagga Wagga - East SA2 compared to the Regional NSW region is the 25 - 34 group, making up 13.6% of the population.
What age groups are under-represented in the Wagga Wagga - East SA2?
The most under-represented age group in the Wagga Wagga - East SA2 compared to the Regional NSW region is the 55 - 64 group, making up 10.4% of the population.
Are there age groups with notable population variances?
No, the age distribution in the Wagga Wagga - East SA2 is broadly in line with the Regional NSW region.
What is the percentage of children (0-14 years) in the Wagga Wagga - East SA2?
The percentage of children aged 0-14 years in the Wagga Wagga - East SA2 is 19.5%.
What is the percentage of older people (65+ years) in the Wagga Wagga - East SA2?
The percentage of people aged 65 and over in the Wagga Wagga - East SA2 is 21.0%.

Nearby Areas