East Devonport

SA2

Rest of Tas. / Devonport

Updated 20 Mar 2026 ABS 2021 604021086
Chart Color Schemes
Loading map data ...
Statistical Area (SA2) Boundary Analysis

This analysis uses ABS Statistical Areas Level 2 (SA2) boundaries, which can materially differ from Suburbs and Localities (SAL) even when sharing similar names.

SA2 boundaries are defined by the Australian Bureau of Statistics and are designed to represent communities for statistical reporting (e.g., census and ERP).

Suburbs and Localities (SAL) represent commonly-used suburb/locality names (postal-style areas) and may use different geographic boundaries. For comprehensive analysis, consider reviewing both boundary types if available.

0 People

est. as @ -- *

ABS ERP | -- people | --

2021 Census | -- people

Land Area
--
Land Area
Population Density
--
Density
Unemployment Rate
--
Unemployment
Development
--
Resi Approvals
Get My Report

Sales Activity

Table Chart PROFILE FAQ

Curious about local property values? Filter the chart to assess the volume and appreciation (including resales) trends and regional comparisons, or scroll to the map below view this information at an individual property level.

House icon
Median Price
$0
Key icon
1yr Sales Volume
0
Find a Recent Sale
Type Specified (1) | Limit 50

Sales Detail

Population

Table Chart PROFILE FAQ

An assessment of population growth drivers in East Devonport reveals an overall ranking slightly below national averages considering recent, and medium term trends

East Devonport's population was approximately 5,391 as of February 2026. This figure represents an increase of 316 people, a 6.2% rise from the 2021 Census which reported a population of 5,075. The change is inferred from the estimated resident population of 5,281 in June 2024 and an additional 155 validated new addresses since the Census date. This results in a density ratio of 407 persons per square kilometer. East Devonport's growth exceeded the SA4 region (5.1%) and the state level between 2021 and February 2026, indicating it as a growth leader. Overseas migration was the primary driver for this population increase.

AreaSearch uses ABS/Geoscience Australia projections for each SA2 area, released in 2024 with a base year of 2022. For areas not covered by this data and post-2032 growth by age group, Tasmania State Government's Regional/LGA projections are adopted, released in 2022 with a base year of 2021, using weighted aggregation methods for estimation. Based on these projections, lower quartile growth is anticipated for non-metropolitan areas nationally, with East Devonport expected to grow by 95 persons to 2041, reflecting a total reduction of 0.3% over the 17-year period.

Frequently Asked Questions - Population

What is the latest population estimate for the East Devonport SA2?
Total population for the East Devonport SA2 was estimated to be approximately 5,391 as at Feb 26. This is based upon an estimated resident population of 5,281 from the ABS up to June 2024.
How has the population in the East Devonport SA2 changed since 2021?
The east devonport sa2 has added approximately 316 people and shown a 6.23% increase from the 5,075 people recorded at the 2021 Census period.
What is the population density in the East Devonport SA2?
The population density in the East Devonport SA2 is estimated at 407 persons per square kilometer based on the latest population estimate.
How much has the population grown over the past 10 years in the East Devonport SA2?
Over the past 10 years, the population in the East Devonport SA2 has shown a compound annual growth rate of 0.7% per annum.
What are the main drivers of population growth in the East Devonport SA2?
Population growth in the East Devonport SA2 is driven by: Overseas migration (100.0%), Natural increase (0.0%), Interstate migration (0.0%). The primary driver is Overseas migration, contributing 100.0% of overall population gains.

Development

Table Chart PROFILE FAQ

Recent residential development output has been above average within East Devonport when compared nationally

East Devonport has seen approximately 37 new homes approved annually. Over the past five financial years, from FY21 to FY25, around 189 homes were approved, with an additional 16 approved so far in FY26. On average, about 1.3 people have moved to the area per dwelling built over these five years, indicating balanced supply and demand conditions. However, this has eased to 0.8 people per dwelling over the past two financial years, reflecting improved supply availability.

New properties are constructed at an average expected cost of $238,000. This year, $951,000 in commercial approvals have been registered, highlighting the area's residential focus. Compared to the rest of Tasmania, East Devonport has slightly more development activity, with 23.0% above the regional average per person over the five-year period.

This preserves reasonable buyer options while sustaining existing property demand. Recent building activity consists entirely of standalone homes, maintaining the area's traditional low-density character and appealing to those seeking family homes with space. The location has approximately 144 people per dwelling approval, indicating a low-density market. With population projections showing stability or decline, East Devonport is expected to experience reduced housing demand pressures in the future, benefiting potential buyers.

Frequently Asked Questions - Development

How many dwelling approvals have occurred in the East Devonport SA2 recently?
Dwelling approval activity in the the East Devonport SA2 area has seen 73 residential approvals over the past two financial years, based on AreaSearch's SA2 aggregation method. The East Devonport SA2's current population of 5,391 has been supported by 37 approvals on average over recent years.
How does the East Devonport SA2's development activity compare to the broader region?
The East Devonport SA2 has seen 0.73 approvals per 100 people in recent years, compared to 0.56 approvals in the broader region. This means that one dwelling has been approved for every 144 people in the East Devonport SA2, compared to one for every 214 in the broader region.
Is the East Devonport SA2 keeping up with housing demand?
Population forecasts suggest stable or declining population, reducing pressure on housing supply in the the East Devonport SA2 area.
What has been the trend in development approvals over the past five years in the East Devonport SA2?
Looking at development activity over the past five years, the East Devonport SA2's approval levels have been below the yearly average of 37, indicating a recent decline in approval activity.
How does recent development compare to population growth in the East Devonport SA2?
Over the past five years, the population in the East Devonport SA2 has grown by approximately 104 people, while 189 residential approvals were recorded. This equates to a ratio of 0.6 people added for each new dwelling approval. This low ratio indicates housing supply is outpacing population growth, potentially creating market oversupply.
Are there opportunities for residential developers in the East Devonport SA2?
With dwelling approval activity running at an average of 37 approvals per year and a population of 5,391, stable population forecasts suggest a mature market with selective development opportunities.

Infrastructure

PROFILE FAQ

East Devonport has emerging levels of nearby infrastructure activity, ranking in the 25thth percentile nationally

Changes to local infrastructure significantly influence an area's performance. AreaSearch identified 14 projects likely impacting the area. Key projects include Devonport Mental Health Hub, Spirit of Tasmania New Vessels and Port Upgrade, TasPorts QuayLink Port Development, and Devonport Oval Sports Complex. The following list details those most relevant.

Professional plan users can use the search below to filter and access additional projects.

INFRASTRUCTURE SEARCH
All Selected

AI Generated Denotes AI-based impression for illustrative purposes only, not to be taken as definitive under any circumstances. Please follow links and conduct other investigations from the project's source for actual imagery. Developers and project owners wishing us to use original imagery please Contact Us and we will do so.

Frequently Asked Questions - Infrastructure

What are some of the major infrastructure and planning changes likely to influence the East Devonport SA2?
Key infrastructure and planning changes likely to influence the East Devonport SA2 include: Devonport Mental Health Hub (Construction); Spirit of Tasmania New Vessels and Port Upgrade (Construction); TasPorts QuayLink Port Development (Construction); Devonport Oval Sports Complex (Construction); and Indie Education School Development (Devonport) (Construction). These projects represent significant developments that will shape the area's future infrastructure landscape.
What types of infrastructure projects are impacting the East Devonport SA2?
Infrastructure development impacting the East Devonport SA2 spans multiple sectors including Education & Training, Tourism, and Ports, Marinas, Fisheries & Aquaculture, among others.
What is the scale of infrastructure investment impacting the East Devonport SA2?
Infrastructure investment analysis indicates substantial capital deployment exceeding $1.3 billion in projects that will impact the extended area, with a notable concentration of investment within the immediate the East Devonport SA2 vicinity.
How does the East Devonport SA2's infrastructure development compare to other areas?
Infrastructure development activity impacting the East Devonport SA2 currently ranks below national averages at the 25thth percentile.
Devonport Mental Health Hub
Category: Health & Medical
Stage: Construction | Est. Comp: 2027
Source / Links: Link 1   Link 2  

A new $40 million purpose-built mental health facility for Tasmania's North West region. The hub includes a Safe Haven for people experiencing suicidal or situational distress, a Recovery College offering free peer-led education, and an Integration Hub providing brief interventions and navigation support. Construction commenced in late 2025 and the facility is on track for completion in late 2027.

Health & Medical

Spirit of Tasmania New Vessels and Port Upgrade
Category: Ports, Marinas, Fisheries & Aquaculture
Stage: Construction | Est. Comp: 2026
Source / Links: Link 1   Link 2  

The project encompasses the introduction of two new LNG-powered vessels, Spirit of Tasmania IV and Spirit of Tasmania V, and the QuayLink infrastructure upgrade at the Port of Devonport. Each vessel features a capacity for 1,800 passengers and 4,098 lane metres for vehicles. Construction is currently focused on Berth 3 and the new Terminal 3 passenger building, which features a timber-framed design using locally sourced materials. Tickets for the new vessels were released in December 2025, with inaugural sailings scheduled for 31 October 2026. The upgrade is expected to increase freight capacity by 40% and annual passenger numbers by 160,000.

Ports, Marinas, Fisheries & Aquaculture

TasPorts QuayLink Port Development
Category: Ports, Marinas, Fisheries & Aquaculture
Stage: Construction | Est. Comp: 2027
Source / Links: Link 1   Link 2  

A $240 million major redevelopment of the East Devonport port infrastructure designed to future-proof the Port of Devonport for the next 50 years. The project involves upgrading marine and landside infrastructure across Terminals 1, 2, and 3 to accommodate larger, next-generation vessels for Spirit of Tasmania (TT-Line) and SeaRoad. Key features include the construction of new wharf infrastructure, a biosecurity inspection terminal, land reclamation, and the implementation of Tasmania's first 3D vessel monitoring system. The project is expected to increase freight capacity by 40% and support an additional 160,000 passengers annually.

Ports, Marinas, Fisheries & Aquaculture

Hydrogen Devonport Project
Category: Energy
Stage: Construction | Est. Comp: 2026
Source / Links: Link 1   Link 2  

Development of a 5 MW Proton Exchange Membrane (PEM) electrolyser facility and hydrogen refuelling station located at Wesley Vale. The project forms the northern hub of Tasmania's Hydrogen HyWay#1, designed to produce up to 690 tonnes of green hydrogen annually for heavy transport and industrial use. The facility will be powered by a mix of grid-connected renewable energy and a dedicated 9.95 MW adjacent solar farm. The project includes two 350 bar dispensers to support zero-emission freight services between the ports of Burnie and Devonport.

Energy

Devonport Showground Housing Development
Category: Residential Development
Stage: Dev. Application | Est. Comp: 2026
Source / Links: Link 1   Link 2  

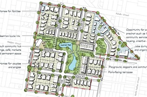
Tasmania's largest private infill housing development on a 10ha CBD site, comprising approximately 200 homes of diverse and adaptable typologies (including affordable, aged care, and disability housing), a health facility, community facilities, a central lake, public parkland, and a large urban farm. The project follows rezoning approval in late 2022 and the first development application (a 'super lot' subdivision) was advertised for public exhibition in April 2024. The project is being developed to create a socially-inclusive, community-centered 'village in a city'.

Residential Development

Devonport Oval Sports Complex
Category: Sports & Recreation
Stage: Construction | Est. Comp: 2027
Source / Links: Link 1   Link 2  

Six-court indoor sports venue with five outdoor courts, serving at least six major sporting codes. Includes shared social facilities, administration facilities, and high-performance training areas. Contractor: Fairbrother Pty Ltd.

Sports & Recreation

paranaple Convention Centre
Category: Tourism
Stage: Completed | Est. Comp: 2020
Source / Links: Link 1   Link 2  

Contemporary purpose-built convention centre with state-of-the-art facilities, versatile spaces, floor-to-ceiling windows and waterfront views. Part of $71 million paranaple centre construction including arts centre, library, and council offices.

Tourism

Indie Education School Development (Devonport)
Category: Education & Training
Stage: Construction | Est. Comp: 2026
Source / Links: Link 1   Link 2  

Three storey education facility for Indie School at 29 Fenton Way, delivering two levels for school operations plus a third level for Indie Education head office functions. Contractor: Fairbrother Pty Ltd. Architect: NH Architecture. Construction commenced October 2024 with a target completion in February 2026. Works include flexible learning spaces, home economics facilities, staff areas and an outdoor rooftop terrace. The project supports Devonport's Living City initiative and is adjacent to the current campus in the former Devonport Library.

Education & Training

Employment

Table Chart PROFILE FAQ

The labour market performance in East Devonport lags significantly behind most other regions nationally

East Devonport has a diverse workforce with white and blue collar jobs across various sectors. The unemployment rate was 6.8% in September 2025, with an estimated employment growth of 7.3% over the past year. As of that date, 2,174 residents were employed while the unemployment rate was 3.0% higher than Rest of Tas.'s rate of 3.8%.

Workforce participation in East Devonport was at 52.6%, compared to Rest of Tas.'s 58.6%. Census responses showed that only 5.5% of residents worked from home, though Covid-19 lockdown impacts should be considered. Key industries of employment among residents were health care & social assistance, retail trade, and agriculture, forestry & fishing. The area had a strong specialization in transport, postal & warehousing, with an employment share 1.6 times the regional level.

However, education & training was under-represented, with only 5.1% of East Devonport's workforce compared to 8.8% in Rest of Tas.. Employment opportunities locally appeared limited, as indicated by the count of Census working population versus resident population. Between September 2024 and September 2025, employment increased by 7.3% while labour force increased by 6.0%, causing a fall in unemployment rate by 1.1 percentage points. In contrast, Rest of Tas. experienced employment growth of 0.7% and labour force growth of 0.5%, with a drop in unemployment rate by 0.2 percentage points. Jobs and Skills Australia's national employment forecasts from May-25 project national employment to expand by 6.6% over five years and 13.7% over ten years, but growth rates differ significantly between industry sectors. Applying these projections to East Devonport's employment mix suggests local employment should increase by 5.8% over five years and 12.6% over ten years, though this is a simple weighting extrapolation for illustrative purposes and does not take into account localised population projections.

Frequently Asked Questions - Employment

What is the employment situation in the East Devonport SA2?
As of September 2025, the East Devonport SA2 has approximately 2,174 employed residents with an unemployment rate of 6.8%. The unemployment rate is moderate, indicating some available workforce capacity. The area faces employment challenges compared to other regions nationally.
How does the East Devonport SA2's unemployment rate compare to the broader region?
As of September 2025, the unemployment rate in the East Devonport SA2 stands at 6.8%, which is 3.0 percentage points above Rest of Tas.'s rate of 3.8%. This higher unemployment rate may indicate local labour market challenges. For comparison, the national unemployment rate is 4.1%.
What are the major employment sectors in the East Devonport SA2?
The employment landscape in the East Devonport SA2 is dominated by several key sectors. The largest employers are health care & social assistance (16.3% of employment), retail trade (11.0%), and agriculture, forestry & fishing (10.5%). Other significant employers include accommodation & food and manufacturing.
How has employment changed recently in the East Devonport SA2?
Over the past year to September 2025, the East Devonport SA2 has experienced employment growth, with total employment increasing while the labour force increased. As a result, the unemployment rate has fall. By comparison, Rest of Tas. saw employment increased and its unemployment rate dropped.
What is the workforce participation rate in the East Devonport SA2?
The workforce participation rate in the East Devonport SA2 is 52.6%, which represents the proportion of working-age residents who are either employed or actively seeking work. This moderate participation rate suggests some residents may face barriers to workforce entry. The local rate trailing the Rest of Tas. average of 58.6%, suggesting potential for increased workforce participation.
Which industries are over-represented in the East Devonport SA2's employment market?
The east devonport sa2 shows notable specialization in transport, postal & warehousing, which employs 7.7% of the local workforce compared to 4.8% regionally. This concentration suggests the area has developed competitive advantages in this sector. The area also shows above-average employment in 1 other sectors, contributing to a distinctive economic profile.
What are the employment growth prospects for the East Devonport SA2?
Based on Jobs and Skills Australia projections applied to the East Devonport SA2's industry mix, employment is expected to grow by 5.8% over the next five years and 12.6% over ten years. This compares to national growth expectations of 6.6% over five years. Steady growth is anticipated across multiple sectors, providing diverse employment opportunities.
How does the job market in the East Devonport SA2 compare nationally?
The east devonport sa2's employment market shows weaker performance compared to most areas nationally. This suggests the need for targeted economic development initiatives. Recent job advertisement trends show the broader employment region saw a 18.7% decline, ranking 28.0th out of 37 regions nationally.
What employment opportunities exist for skilled workers in the East Devonport SA2?
Skilled workers will find good opportunities in the East Devonport SA2, with skilled sectors accounting for 25.3% of employment. Key sectors for skilled workers include health care & social assistance (16.3%), education & training (5.1%), and professional & technical (2.8%). With projected employment growth of 5.8% over five years, demand for skilled workers is expected to remain strong.

Income

Table Chart PROFILE FAQ

Income metrics place the area in the bottom 10% of locations nationally according to AreaSearch analysis

East Devonport SA2 had a median taxpayer income of $41,355 and an average of $48,448 in financial year 2023, according to postcode level ATO data aggregated by AreaSearch. This was lower than the national average, with Rest of Tas. reporting a median income of $49,689 and an average income of $59,358. Based on Wage Price Index growth of 9.6% since financial year 2023, estimated incomes for September 2025 would be approximately $45,325 (median) and $53,099 (average). Census 2021 data showed that household, family, and personal incomes in East Devonport fell between the 2nd and 5th percentiles nationally. The largest income segment comprised 32.9% earning $400 - $799 weekly, with 1,773 residents, contrasting with metropolitan regions where the $1,500 - $2,999 bracket led at 28.5%. The concentration of 42.3% in sub-$800 weekly brackets highlighted economic challenges faced by a significant portion of the community. Housing affordability pressures were severe, with only 83.9% of income remaining, ranking at the 4th percentile nationally.

Frequently Asked Questions - Income

What is the median taxable income in the East Devonport SA2?
Based on Wage Price Index adjustments to September 2025, the estimated median taxable income in the East Devonport SA2 is approximately $45,325. The official ATO data from FY-23 recorded a median of $41,355.
What is the average taxable income in the East Devonport SA2?
Based on Wage Price Index adjustments to September 2025, the estimated average taxable income in the East Devonport SA2 is approximately $53,099. The official ATO data from FY-23 recorded an average of $48,448.
How does the median taxable income in the East Devonport SA2 compare to the region?
Based on Wage Price Index adjustments to September 2025, the estimated median taxable income in the East Devonport SA2 is approximately $45,325 compared to $54,459 in Rest of Tas.. The official ATO data from FY-23 shows $41,355 and $49,689 respectively.
How does the average taxable income in the East Devonport SA2 compare to the region?
Based on Wage Price Index adjustments to September 2025, the estimated average taxable income in the East Devonport SA2 is approximately $53,099 compared to $65,056 in Rest of Tas.. The official ATO data from FY-23 shows $48,448 and $59,358 respectively.
What are the main income cohorts in the East Devonport SA2 according to the 2021 Census?
As per the 2021 Census, the income bracket containing the largest proportion (~32.9% / 1,773 persons) of the East Devonport SA2's population is the $400 - 799 cohort.
How do the main income cohorts in the East Devonport SA2 compare to the region?
The largest income cohort in the East Devonport SA2 is the $400 - 799 group, representing about 32.9% of the population. In comparison, Rest of Tas.'s largest income cohort is the $1,500 - 2,999 group, representing 28.5% of its population, according to the 2021 Census.
What is the median household income in the East Devonport SA2 according to the 2021 Census?
The 2021 Census data indicates that the median household income in the East Devonport SA2 is $950/wk.
What is the median family income in the East Devonport SA2 according to the 2021 Census?
According to the 2021 Census, the median family income in the East Devonport SA2 is $1,281/wk.
What is the median personal income in the East Devonport SA2 according to the 2021 Census?
The 2021 Census shows that the median personal income in the East Devonport SA2 is $535/wk.
How does the East Devonport SA2's income rank nationally?
AreaSearch's latest postcode level ATO data for FY-23 reveals that income in the East Devonport SA2 is lower than average on a national basis, with the median assessed at $41,355 while the average income stands at $48,448. This contrasts to Rest of Tas.'s figures of a median income of $49,689 and an average income of $59,358. Based on Wage Price Index growth of 9.6% since FY-23, current estimates would be approximately $45,325 (median) and $53,099 (average) as of September 2025.
What is the disposable income in the East Devonport SA2?
The estimated disposable income in the East Devonport SA2 is $3,452 per year according to AreaSearch analysis.
How does the East Devonport SA2's disposable income compare to the region?
The east devonport sa2's disposable income is $3,452 compared to $4,607 for Rest of Tas., based on AreaSearch analysis.

Housing

Table Chart PROFILE FAQ

East Devonport is characterized by a predominantly suburban housing profile, with a higher proportion of rental properties than the broader region

East Devonport's dwelling structures, as per the latest Census evaluation, consisted of 87.5% houses and 12.6% other dwellings (semi-detached, apartments, 'other' dwellings), compared to Non-Metro Tas.'s 87.9% houses and 10.1% other dwellings. Home ownership in East Devonport stood at 36.5%, with mortgaged dwellings at 24.4% and rented ones at 39.1%. The median monthly mortgage repayment was $1,083, below Non-Metro Tas.'s average of $1,274. The median weekly rent in East Devonport was $236, compared to Non-Metro Tas.'s $250. Nationally, East Devonport's mortgage repayments were lower at $1,083 than the Australian average of $1,863, and rents were substantially below the national figure of $375.

Frequently Asked Questions - Housing

What percentage of homes are owned vs rented in the East Devonport SA2?
In the East Devonport SA2, 36.5% of homes are owned outright, 24.4% are owned with a mortgage, and 39.1% are rented.
What percentage of dwellings in the East Devonport SA2 are houses?
According to the latest data, 87.5% of dwellings in the East Devonport SA2 are houses.
What percentage of dwellings in the East Devonport SA2 are apartments or units?
In the East Devonport SA2, 0.0% of dwellings are apartments or units, with an additional 8.5% being semi-detached dwellings.
What is the level of outright home ownership in the East Devonport SA2?
Outright home ownership in the East Devonport SA2 stands at 36.5%, compared to 41.1% in Rest of Tas..
What is the median monthly mortgage repayment in the East Devonport SA2?
The median monthly mortgage repayment in the East Devonport SA2 is $1,083, compared to $1,274 in Rest of Tas..
What is the median weekly rent in the East Devonport SA2?
The median weekly rent in the East Devonport SA2 is $236, compared to $250 in Rest of Tas..
What is the distribution of rental prices in the East Devonport SA2?
In the East Devonport SA2, 6.8% of rentals are $0-149/week, 85.7% are $150-349/week, 7.5% are $350-649/week, 0.0% are $650-949/week, and 0.0% are $950+/week.
What is the average monthly housing cost in the East Devonport SA2?
The aggregate monthly housing cost in the East Devonport SA2 is $664, which represents the average monthly cost across all housing types.
What percentage of income do residents spend on housing in the East Devonport SA2?
In the East Devonport SA2, households with mortgages typically spend 26.3% of their income on mortgage repayments, while renters spend 24.8% of their income on rent.
How crowded are homes in the East Devonport SA2?
The average persons per bedroom ratio in the East Devonport SA2 is 0.8, indicating the level of household density.
How does housing affordability in the East Devonport SA2 compare to the region?
Housing affordability in the East Devonport SA2 shows mortgage holders spending 26.3% of income on repayments (vs 24.0% regionally), while renters spend 24.8% of income on rent (vs 20.4% regionally).
What types of dwellings are most common in the East Devonport SA2?
The dwelling mix in the East Devonport SA2 consists of 87.5% detached houses, 8.5% semi-detached dwellings, 0.0% apartments, and 4.1% other dwelling types.
What is the weighted average housing cost based on tenure mix in the East Devonport SA2?
Factoring in the ownership distribution, the weighted average monthly housing cost is approximately $664. This accounts for outright owners paying no housing costs, mortgage holders paying $1,083/month, and renters paying $1,022/month.
How affordable is housing in the East Devonport SA2 relative to local incomes?
Housing in East Devonport consumes approximately 16.1% of median household income ($4,114 monthly), indicating costs are highly affordable. The generally accepted benchmark is that housing should not exceed 30% of household income.
How do proposed developments compare to existing housing types in the East Devonport SA2?
Recent development applications in East Devonport show attached dwellings contributing 0% of approvals compared to 12% of existing stock, while detached houses represent 100% of applications versus 88% of current dwellings. This suggests development patterns consistent with existing housing mix. The area shows minimal growth in housing density compared to other Australian locations.

Household Composition

Table Chart PROFILE FAQ

East Devonport features high concentrations of lone person households, with a lower-than-average median household size

Family households constitute 63.5% of all households, including 18.1% couples with children, 27.3% couples without children, and 16.8% single parent families. Non-family households comprise the remaining 36.5%, with lone person households at 32.7% and group households at 3.8%. The median household size is 2.2 people, which is smaller than the Rest of Tas. average of 2.3.

Frequently Asked Questions - Households

How many households are in the East Devonport SA2?
As of the 2021 Census, the East Devonport SA2 had 2,074 households. Based on population growth patterns, this has grown by approximately 6.2% to an estimated 2,203 households today.
What is the typical household size?
The median household size in the East Devonport SA2 is 2.2 people. This compares to 2.3 in Rest of Tas. and reflects the area's household composition mix.
What types of households are most common?
Family households dominate at 63.5% of all households. The remaining households consist of lone person households (32.7%), group households (3.8%), and other household types (0.0%).
How are families structured in the area?
Among the 1,316 family households, 18.1% are couples with children, 27.3% are couples without children at home, and 16.8% are single parent families. This mix shapes local demand for schools, family services, and housing types.
How does the East Devonport SA2 compare to regional household patterns?
Compared to Rest of Tas., the East Devonport SA2 shows distinct household patterns. This higher proportion of single-person households drives demand for smaller dwellings and different community services.
What is the average family size?
Families in the East Devonport SA2 have an average of 2.0 children, slightly above the Rest of Tas. average of 1.8. This influences local demand for child-related services and larger family homes.
What are the marriage patterns in the East Devonport SA2?
Marriage patterns reveal 38.1% of the adult population are currently married, while 36.7% have never married. This compares to 45.6% married and 33.8% never married across Rest of Tas..
How significant are single-person households?
Single-person households represent 32.7% of all households in the East Devonport SA2, similar to the regional average of 30.1%. This affects demand for smaller dwellings and single-person accommodation.
Are shared living arrangements common?
Group households (unrelated people sharing) account for 3.8% of households, well below the Rest of Tas. average of 2.8%. This low rate suggests limited student or young professional shared accommodation.
Loading household composition data...

Local Schools & Education

Table Chart PROFILE FAQ

East Devonport faces educational challenges, with performance metrics placing it in the bottom quartile of areas assessed nationally

The area's university qualification rate is 12.3%, significantly lower than the Australian average of 30.4%. This presents both a challenge and an opportunity for targeted educational initiatives. Bachelor degrees are the most common at 8.6%, followed by postgraduate qualifications (2.2%) and graduate diplomas (1.5%). Trade and technical skills are prominent, with 37.9% of residents aged 15+ holding vocational credentials - advanced diplomas (7.3%) and certificates (30.6%).

Educational participation is high, with 27.0% of residents currently enrolled in formal education. This includes 11.1% in primary education, 7.7% in secondary education, and 1.9% pursuing tertiary education.

Frequently Asked Questions - Education

What percentage of people in the East Devonport SA2 have university qualifications?
12.3% of people aged 15 and over in the East Devonport SA2 have university qualifications, compared to 19.3% in the broader region.
What percentage of people in the East Devonport SA2 have no formal qualifications?
49.7% of people aged 15 and over in the East Devonport SA2 have no formal qualifications, compared to 43.0% regionally.
How does the East Devonport SA2's education level compare to national averages?
The east devonport sa2 ranks in the 5th percentile nationally for education based on AreaSearch's analysis of qualification and performance metrics.
What types of qualifications are most common in the East Devonport SA2?
The most common qualifications in the East Devonport SA2 are: Certificate (30.6%), Bachelor Degree (8.6%), Advanced Diploma (7.3%).
What proportion of the East Devonport SA2's population is currently attending educational institutions?
27.0% of the population in the East Devonport SA2 is currently engaged in formal education, with 11.1% in primary school, 7.7% in secondary school, 1.9% at university.
What is the ICSEA score for schools in the East Devonport SA2?
The average ICSEA (Index of Community Socio-Educational Advantage) score for schools in the East Devonport SA2 is 822, indicating below-average socio-educational advantage compared to the national average of 1000.
How many schools are located within the East Devonport SA2?
There are 1 schools within the East Devonport SA2, with a combined enrollment of approximately 206 students.
What types of schools are available in the East Devonport SA2?
The east devonport sa2 includes 1 primary school.

Schools Detail

Nearby Services & Amenities

PROFILE FAQ

Transport

Table Chart PROFILE FAQ

No public transport data available for this catchment area.

Frequently Asked Questions - Transport

Is public transport available in East Devonport?
Limited or no public transport data is available for the East Devonport SA2.

Transport Stops Detail

Health

Table Chart PROFILE FAQ

Health performance in East Devonport is well below average with prevalence of common health conditions notable across both younger and older age cohorts

East Devonport faces significant health challenges, as per AreaSearch's assessment. Mortality rates and chronic condition prevalence are substantial across both younger and older age cohorts. Private health cover is extremely low at approximately 46% of the total population (~2,485 people), compared to 49.1% in Rest of Tas., and 55.7% nationally.

Mental health issues and arthritis are the most common conditions, affecting 12.2% and 12.1% of residents respectively, while 56.0% report no medical ailments, lower than Rest of Tas.'s 62.0%. The working-age population has notably high chronic condition rates. Residents aged 65 and over comprise 25.3% (1,363 people). Health outcomes among seniors are similar to national rankings for the general population.

Frequently Asked Questions - Health

How many people in the East Devonport SA2 have private health insurance?
Around 46.1% of people in the East Devonport SA2 are covered by private health insurance, which compares to 49.1% in the broader region of Rest of Tas..
What percentage of the population requires ongoing medical assistance in the East Devonport SA2?
In the East Devonport SA2, 10.0% of the population is identified as requiring ongoing medical assistance. This figure is slightly different from the regional average, where 7.3% of people in Rest of Tas. require similar assistance.
How prevalent is asthma in the East Devonport SA2?
9.5% of people in the East Devonport SA2 are diagnosed with asthma. In comparison, 8.4% of the population across Rest of Tas. is affected by asthma.
What percentage of people have diabetes in the East Devonport SA2?
Diabetes affects 5.7% of the the East Devonport SA2 population, while in the surrounding region, 4.8% of people are diagnosed with diabetes.
What is the percentage of people with heart disease in the East Devonport SA2?
4.7% of people in the East Devonport SA2 have heart disease. Across the region of Rest of Tas., 4.2% of the population is affected by heart disease.
How does the East Devonport SA2 compare to the region in terms of overall private health coverage?
In the East Devonport SA2, 46.1% of the population are estimated to have private health insurance. Comparatively, Rest of Tas. sees an estimated private health coverage rate of 49.1%.

Cultural Diversity

Table Chart PROFILE FAQ

East Devonport ranks below the Australian average when compared to other local markets across a number of language and cultural background related metrics

East Devonport had a cultural diversity below average, with 87.0% citizens, 86.4% born in Australia, and 93.1% speaking English only at home. Christianity was the main religion, comprising 42.8%. The 'Other' category showed overrepresentation at 0.8%, compared to 0.7% regionally.

In ancestry, Australian (33.8%), English (32.6%), and Scottish (7.0%) were the top groups. Notably, Australian Aboriginal was overrepresented at 6.8% (vs 4.1%), Samoan at 0.2% (vs 0.0%), and Korean at 0.2% (vs 0.1%).

Frequently Asked Questions - Diversity

What is the level of cultural diversity in the East Devonport SA2?
East Devonport was found to be below average in terms of cultural diversity, with 87.0% of its population being citizens, 86.4% born in Australia, and 93.1% speaking English only at home.
What is the most common religion in the East Devonport SA2?
The main religion in East Devonport was found to be Christianity, which makes up 42.8% of people in East Devonport. However, the most apparent overrepresentation was in Other, which comprises 0.8% of the population, compared to 0.7% across Rest of Tas..
What are the top countries of origin in the East Devonport SA2?
In terms of ancestry (country of birth of parents), the top three represented groups in East Devonport are Australian, comprising 33.8% of the population, English, comprising 32.6% of the population, and Scottish, comprising 7.0% of the population. Additionally, there are notable divergences in the representation of certain other ethnic groups: Australian Aboriginal is notably overrepresented at 6.8% of East Devonport (vs 4.1% regionally), Samoan at 0.2% (vs 0.0%) and Korean at 0.2% (vs 0.1%).
How does the percentage of people born overseas compare to the regional average?
13.6% of the the East Devonport SA2 population was born overseas, compared to 13.4% regionally.
What percentage of the the East Devonport SA2 population speaks a language other than English at home?
6.9% of the population in the East Devonport SA2 speaks a language other than English at home, compared to 5.8% in the wider region.
How many people in the East Devonport SA2 identify as Australian Aboriginal?
6.8% of the the East Devonport SA2 population identifies as Australian Aboriginal, compared to 4.1% in the region.
What is the citizenship status of the population in the East Devonport SA2?
87.0% of the the East Devonport SA2 population holds citizenship, compared to 89.3% in the wider region.

Age

Table Chart PROFILE FAQ

East Devonport hosts a notably older demographic compared to the national average

East Devonport's median age in 2021 was 44 years, comparable to Rest of Tas.'s figure of 45 but higher than the national norm of 38. The 25-34 age group made up 13.4% of East Devonport's population compared to Rest of Tas., while the 45-54 cohort was less prevalent at 10.2%. Post-2021 Census data showed that the 35-44 age group grew from 9.6% to 11.5%, and the 75-84 cohort increased from 8.0% to 9.6%. Conversely, the 65-74 cohort declined from 14.2% to 12.9%, and the 45-54 group dropped from 11.4% to 10.2%. By 2041, East Devonport is expected to see notable shifts in its age composition. Leading this shift, the 75-84 group will grow by 20%, reaching 622 people from 517. The aging population trend is clear, with those aged 65 and above comprising 96% of projected growth. Conversely, population declines are projected for the 5-14 and 0-4 age cohorts.

Frequently Asked Questions - Age

What is the median age in the East Devonport SA2?
According to the latest data, the median age in the East Devonport SA2 is 44 years.
How does the East Devonport SA2's median age compare to broader areas?
At 44 years, East Devonport is comparable to the Rest of Tas. average (45 years) yet 6 years older than the national average (38 years).
What age groups are over-represented in the East Devonport SA2?
The most over-represented age group in the East Devonport SA2 compared to the Rest of Tas. region is the 25 - 34 group, making up 13.4% of the population.
What age groups are under-represented in the East Devonport SA2?
The most under-represented age group in the East Devonport SA2 compared to the Rest of Tas. region is the 45 - 54 group, making up 10.2% of the population.
Are there age groups with notable population variances?
No, the age distribution in the East Devonport SA2 is broadly in line with the Rest of Tas. region.
What is the percentage of children (0-14 years) in the East Devonport SA2?
The percentage of children aged 0-14 years in the East Devonport SA2 is 16.1%.
What is the percentage of older people (65+ years) in the East Devonport SA2?
The percentage of people aged 65 and over in the East Devonport SA2 is 25.3%.

Nearby Areas